Aerdenhout

Aerdenhout

Teding van Berkhoutlaan 41

A
€1.100.000,- k.k.
136 m² wonen
273 m² perceel
5 kamers
Aan Rustige Weg
1926
Eric Liefveld – RM RT – Mooijekind Vleut Makelaars in Heemstede-Aerdenhout
Eric Liefveld
Partner - Register Makelaar en Register Taxateur
023 - 800 02 00
Eric Liefveld – RM RT – Mooijekind Vleut Makelaars in Heemstede-Aerdenhout

Beschrijving

Deze charmante woning biedt aan zowel de voor- als achterzijde vrij uitzicht en beschikt over een royale achtertuin van maar liefst 19 meter diep. De woning is goed onderhouden (energielabel A) en voorzien van sfeervolle Art Deco details, met een diepe voortuin, een lichte woonkamer en openslaande deuren naar de riante achtertuin.

Gelegen in een geliefde, groene buurt waar kinderen nog fijn op straat spelen of op het schoolplein aan de overkant. Alles wat u nodig heeft bevindt zich binnen handbereik: scholen, winkels, sportclubs, openbaar vervoer en uitvalswegen.

Deze karaktervolle gezinswoning uit 1926 bevat nog diverse authentieke details, zoals origineel glas-in-lood en paneeldeuren. In de afgelopen jaren is de woning met zorg verduurzaamd: de vloer is geïsoleerd en zonnepanelen zorgen voor een gunstig energieverbruik. De woning is goed onderhouden maar biedt ook volop kansen om naar eigen smaak te moderniseren.

Wat een tuin! Zodra u hier binnenstapt, ervaart u de rust en ruimte. Met een diepte van 19 meter biedt deze buitenruimte eindeloze mogelijkheden. Geniet de hele dag van de zon op één van de terrassen, terwijl kinderen veilig spelen op het grote gazon. Helemaal achterin vindt u een houten berging en een sfeervolle overkapping – perfect voor het openhaardhout of een gezellig zitje in de avondzon.

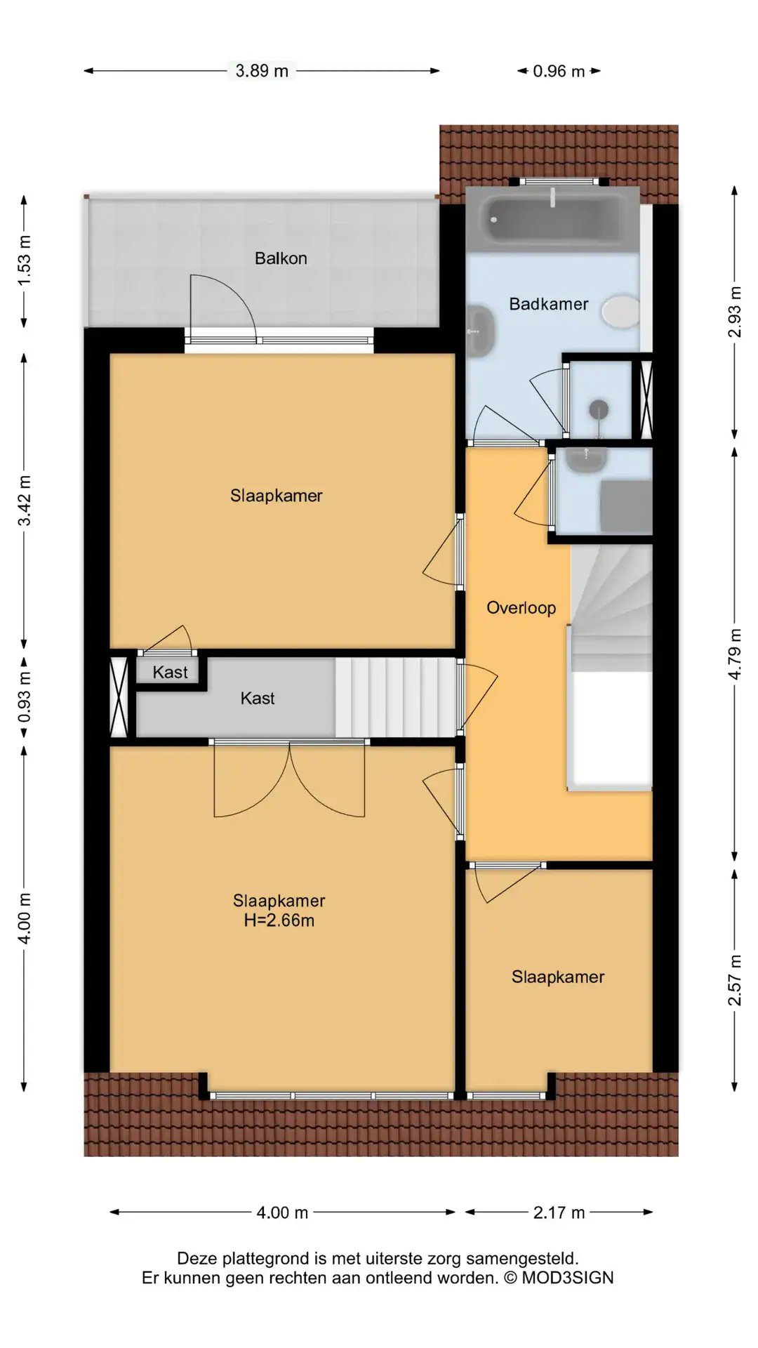
De bovenverdiepingen zijn verrassend ruim. Op de eerste verdieping bevinden zich twee royale slaapkamers met openslaande deuren naar een balkon, een werkkamer en een badkamer. De tweede verdieping beschikt over een ruime voorzolder met veel bergruimte achter de knieschotten en een extra slaapkamer met wastafel.

Kortom: een heerlijk familiehuis op een prachtige plek, vol sfeer en authentieke details – de ideale basis voor wie op zoek is naar een warm thuis dat geheel naar eigen smaak kan worden ingericht.

Het centrum van Aerdenhout is een rustige, kindvriendelijke woonomgeving met buurtwinkels, (basis)scholen en speeltuinen op loopafstand. Het NS-station Heemstede/Aerdenhout ligt op slechts 2 minuten fietsen en het centrum van Haarlem bereikt u binnen 10 minuten. Uitvalswegen zijn eenvoudig te bereiken, en voor een zonnige stranddag of een wandeling in de duinen hoeft u niet in de file te staan: met de fiets bent u in 20 minuten in Zandvoort aan Zee.

Goed om te weten:
*Energielabel A
*Zonnige tuin
*Duurzame woning met zonnepanelen, muur- en vloerisolatie en grotendeels voorzien van dubbel glas (met uitzondering van het zolderraam)
*Op loopafstand van station met directe verbindingen naar Amsterdam, Leiden en Den Haag
*Gezellige winkelstraat met o.a. slager, visboer, bakker, traiteur, Luciano en Albert Heijn
*Diverse natuurgebieden en buitenplaatsen in de directe nabijheid, waaronder de Amsterdamse Waterleidingduinen (op minder dan 3 km afstand)
*Basisschool en kinderopvang op steenworpafstand
*Nabij hockeyclub Rood-Wit en manege Het Naaldenhof

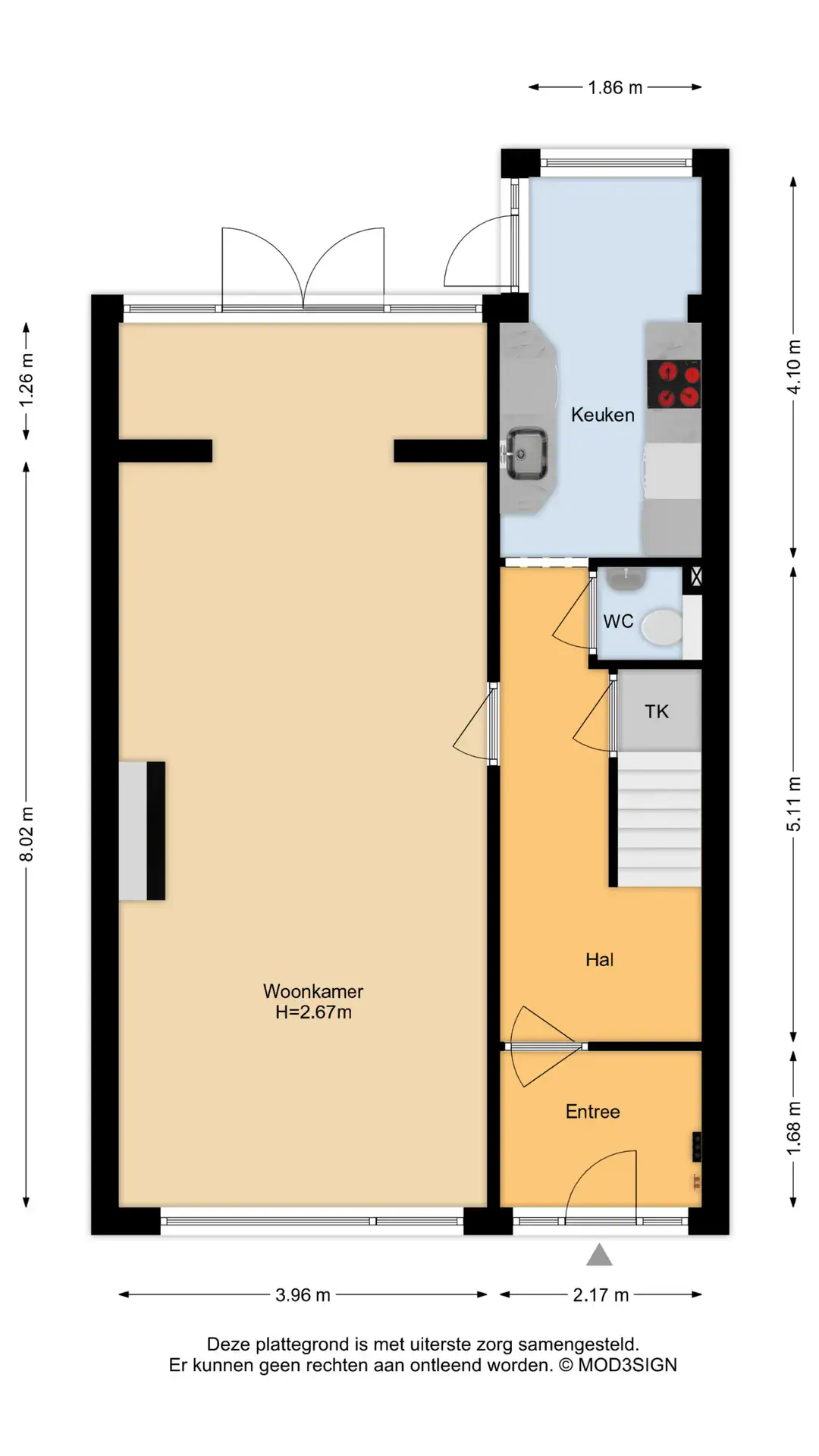
Begane grond
Ruime voortuin, entree met tochtportaal, garderobe en meterkast, ruime hal met toilet en verdiepte trapkast. Deur met glas-in-lood naar de woonkamer met open haard, vrij uitzicht aan de voorzijde en een aangebouwde serre aan de achterzijde met openslaande deuren naar de riante tuin. Keuken aan de achterzijde met diverse inbouwapparatuur, een gezellig zitje bij het raam met uitzicht en toegang tot de achtertuin.

Eerste verdieping
Ruime overloop met drempelloze houten parketvloer over gehele etage, vaste kast voor wasmachine/drogeropstelling, werkkamer aan de voorzijde, ruime slaapkamer aan de voorzijde met extra diepe ingebouwde kastenwand, slaapkamer aan de achterzijde met toegang tot het balkon. Badkamer met ligbad, toilet, infraroodpaneel en douche.

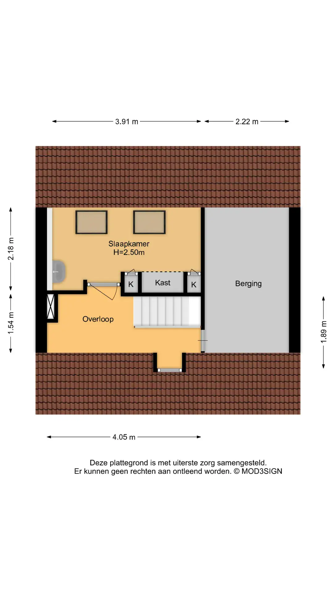
Tweede verdieping
Overloop met drempelloze houten parketvloer over gehele etage en kleine dakkapel aan de voorzijde, ruime berging aanwezig achter de knieschotten en een slaapkamer aan de achterzijde met wastafel.

– English text-
This charming home offers unobstructed views at both the front and rear and features a spacious, south-facing back garden measuring no less than 19 meters in depth. The property is well maintained (energy label A) and showcases delightful Art Deco details, with a deep front garden, a bright living room, and French doors opening onto the generous rear garden.

Situated in a popular, green neighborhood where children still play safely in the street or on the school playground across the road, everything you need is within easy reach: schools, shops, sports clubs, public transport, and major roads.

This characterful family home, built in 1926, retains many authentic features such as original stained glass and panel doors. In recent years, the property has been carefully upgraded for sustainability: the floor has been insulated, and solar panels contribute to excellent energy efficiency. The home is in good condition yet offers plenty of opportunity to modernize to your own taste.

What a garden! As soon as you step inside, you’ll feel a sense of peace and space. With a depth of 19 meters, this outdoor area offers endless possibilities. Enjoy the sun all day long on one of the terraces while children play safely on the large lawn. At the very back, you’ll find a wooden shed and a cozy covered area – perfect for storing firewood or relaxing with a drink in the evening sun.

The upper floors are surprisingly spacious. On the first floor, there are two large bedrooms with French doors opening onto a balcony, a study, and a bathroom. The second floor features a spacious landing with ample storage space behind the knee walls and an additional bedroom with a washbasin.

In short: a wonderful family home in a beautiful location, full of charm and authentic details – the perfect base for anyone looking for a warm home that can be styled entirely to their own taste.

The center of Aerdenhout is a peaceful, child-friendly residential area with local shops, (primary) schools, and playgrounds within walking distance. Heemstede/Aerdenhout railway station is just a 2-minute bike ride away, and Haarlem’s city center can be reached within 10 minutes. Major roads are easily accessible, and for a sunny day at the beach or a walk in the dunes, you won’t get stuck in traffic – Zandvoort aan Zee is only a 20-minute bike ride away.

Good to know:
*Energy label A
*Sunny garden
*Sustainable home with solar panels, wall and floor insulation, and mostly double glazing (except for the attic window)
*Within walking distance of the station with direct connections to Amsterdam, Leiden, and The Hague
*Lively local shopping street with a butcher, fishmonger, bakery, delicatessen, Luciano’s ice cream parlor, and Albert Heijn supermarket
*Surrounded by nature reserves and estates, including the Amsterdamse Waterleidingduinen (less than 3 km away)
*Primary school and childcare facilities just around the corner
*Close to Rood-Wit hockey club and Het Naaldenhof riding school

Ground floor
Spacious front garden, entrance with vestibule, coat area, and meter cupboard. Generous hallway with toilet and deep stair cupboard. Glass-in-lead door to the living room with fireplace, unobstructed front view, and an attached conservatory at the rear with French doors opening to the large garden. Kitchen at the rear with various built-in appliances, a cozy seating area by the window with garden view, and access to the back garden.

First floor
Spacious landing with threshold-free wooden parquet flooring throughout, built-in cupboard with washing machine and dryer connections, study at the front, large front bedroom with deep built-in wardrobe, and rear bedroom with access to the balcony. Bathroom with bathtub, toilet, infrared panel, and shower.

Second floor
Landing with threshold-free wooden parquet flooring throughout and small dormer at the front, ample storage space behind the knee walls, and a rear bedroom with washbasin.

Plattegronden

Kenmerken

Algemeen
Prijs €1.100.000,- k.k.
Aanvaarding In Overleg
Status Beschikbaar
Energie
Energie label A
Isolatie Dakisolatie, Muurisolatie, Vloerisolatie, Grotendeels dubbelglas
Verwarming Cv ketel, Open haard
Warm water Cv ketel
CV-ketel Intergas HRE 28/24cw4 (Eigendom)
Oppervlakte en inhoud
Wonen 273 m²
Overige inpandige ruimte 19 m²
Gebouwgebonden buitenruimte 6 m²
Perceel 136 m²
Inhoud 493 m²
Hoofdtuin 118 m²
Specificaties
Soort woonhuis Eengezinswoning
Soort bouw Bestaande Bouw
Bouwjaar 1926
Soort dak Zadeldak
Ligging Aan Rustige Weg, In Woonwijk, Vrij Uitzicht, In Bosrijke Omgeving
Type tuin Achtertuin, Voortuin
Garage Nee
Externe berging Ja
Kadastrale gegevens
Plaats & postcode Aerdenhout 2111 ZB
Perceel 136 m²
Eigendomssituatie Volle Eigendom
Indeling
Aantal kamers 5 kamers (4 slaapkamers)
Aantal badkamers 1 badkamers
Badkamervoorzieningen Ligbad, Toilet, Douche, Wastafelmeubel
Voorzieningen Mechanische ventilatie, Tv kabel, Buitenzonwering, Rookkanaal, Dakraam, Zonnepanelen, Natuurlijke ventilatie Verdiepingen
Toon alle kenmerken Toon minder kenmerken
hypotheekshop-logo Wat worden mijn maandlasten? Klik hier om een afspraak te maken met een onafhankelijke hypotheekadviseur
Buurt & ligging
Aerdenhout
Alle buurtinfo
Aantal inwoners 2775
Aantal woningen 1050
Gem. WOZ-waarde €1491000
Voorzieningen in de buurt
      Samenstelling huishoudens

      single

      zonder kinderen

      met kinderen

      Leeftijdsopbouw

      0 - 14 jaar

      15 - 24 jaar

      25 - 44 jaar

      45 - 64 jaar

      65+ jaar

      Verdeling type woning

      tussenwoning

      hoekwoning

      twee-onder-een-kap

      vrijstaand

      appartementen

      Vergelijkbaar in de buurt

      Zelfde prijscategorie Zelfde type woning

      Er zijn geen vergelijkbare woningen gevonden in deze prijsklasse en buurt

      Er zijn geen vergelijkbare woningen gevonden van hetzelfde type en buurt