Amsterdam

West

Hoofdweg 291 3

E
€450.000,- Buyer's costs
58 m² living area
3 rooms
On a busy road
1925
Isabelle Band – RM RT – Mooijekind Vleut Makelaars in Amsterdam
Isabelle Band
Partner - Certified Estate Agent and Certified Appraiser - Expat Broker
020 - 800 23 83

Description

This bright and atmospheric apartment in the popular De Baarsjes neighborhood combines comfort, tranquility, and modern finishes in a prime location. Featuring a sunny west-facing balcony, two (bed)rooms, and a practical layout, this is an ideal home for both living and working.

Surroundings
The apartment is located in the popular De Baarsjes area, on a sought-after stretch of Hoofdweg, near Mercatorplein with a variety of terraces, shops, cafés, and restaurants. The neighborhood is vibrant and offers plenty of dining options, such as Bar Baarsch, Bar Lusconi, De Neef van Fred, and Bartack. For sports and relaxation, Vondelpark, Rembrandtpark, Erasmuspark, and Westerpark are all within short distance, as well as De Hallen and the Ten Katemarkt.

The location is highly convenient: within minutes you can reach Amsterdam’s city center and major roads (A10, A2, and A4 towards Schiphol). Public transport connections are excellent, with multiple tram and bus lines providing easy access to Amsterdam Zuid WTC and Sloterdijk. The Mercatorplein parking garage is within walking distance and accessible with a municipal parking permit.

Key features
* Living area: 58 m²
* Sunny west-facing balcony
* Fully double-glazed
* Low heating costs
* Bedroom with air conditioning
* Active Homeowners Association (professionally managed), service costs €133.94
* Located on leasehold land; ground rent paid off until 2054, thereafter fixed perpetually
* Transfer date in consultation

The apartment
Located on the third and top floor, this apartment offers a practical layout and a pleasant atmosphere thanks to the combination of space, light, and modern finishes. You enter through a spacious and bright hallway that provides access to the various rooms.

At the rear, you’ll find the bright and generously sized kitchen, designed to invite shared cooking moments. It is equipped with high-quality built-in appliances, including a Quooker, a 5-burner stove, oven, extractor hood, and a Zanussi dishwasher. The large sink, neat countertop, and ample cabinet space enhance ease of use, while a Bosch washer/dryer combination is subtly integrated. From the kitchen, you have direct access to the west-facing balcony, which has recently been coated and contributes to a well-maintained and inviting appearance.

The main bedroom, located at the rear, features air conditioning and French doors leading to the balcony. Built-in wardrobes create a clean and streamlined look. The second (bed)room is also well-sized and offers flexibility for various living needs. Currently set up as a workspace, this room—along with the hallway—features stylish slatted wall panels that add a contemporary and warm character.

The bathroom is modern and comfortable, featuring a spacious walk-in shower, a sink, and a towel radiator. A separate toilet is located next to the bathroom.

In recent years, the property has been carefully maintained and improved. In 2025, double glazing was installed at the rear and air conditioning was added to the bedroom. The building’s façades have recently been painted and cleaned. Altogether, this results in a home that is ready to move into without concerns.

Here you will live in a bright, comfortable, and thoughtfully designed apartment where everything aligns, from layout to finishes, and from atmosphere to outdoor living on the sunny balcony. A place that immediately feels like home.

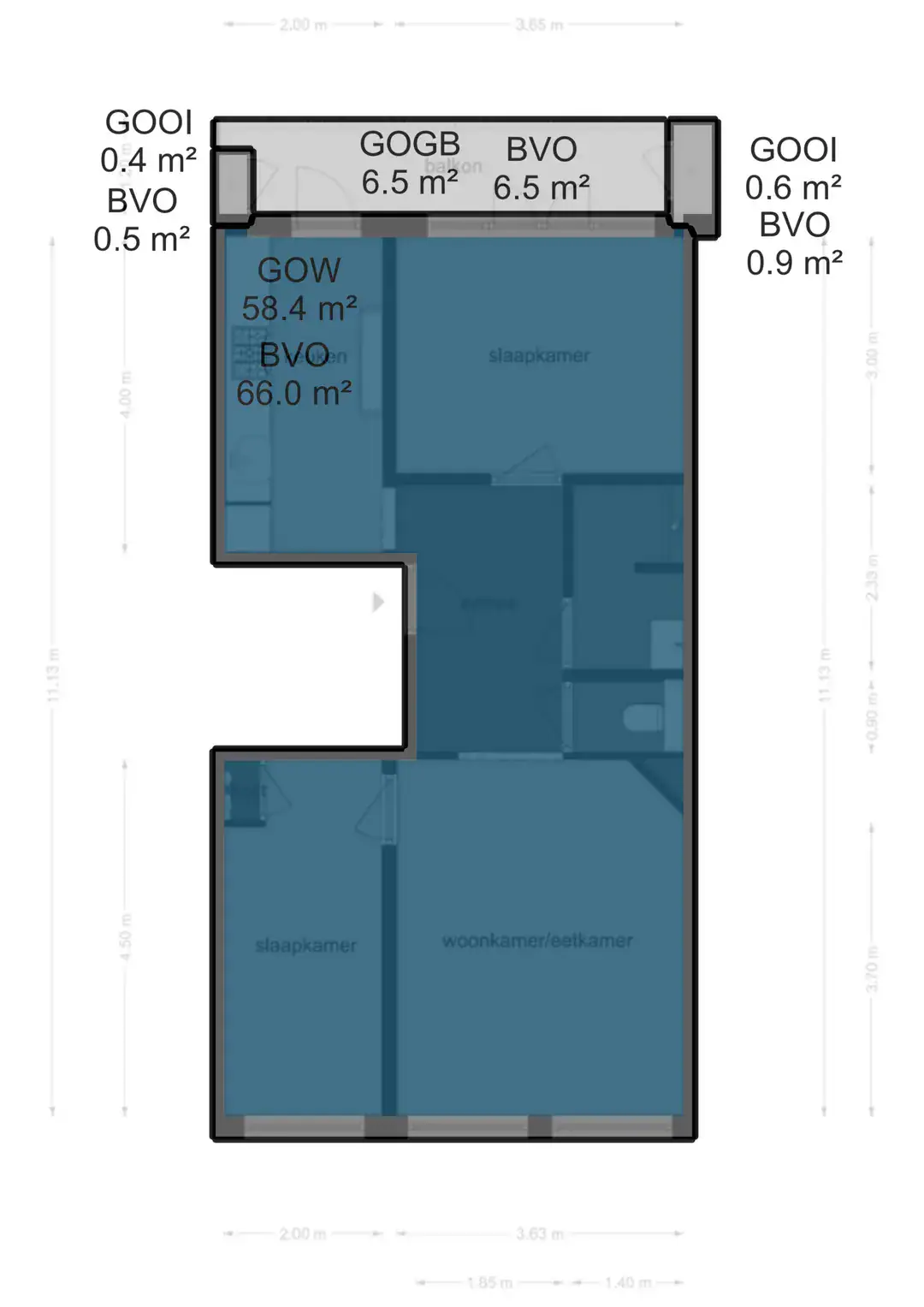
Floor plans

Features

General
Price €450.000,- Buyer's costs
Possession In consultation
Status Available
Energy
Energy label E
Isolation Floor insulation
Heating CH-boiler
Hot water CH-boiler
Boiler Remeha (Ownership)
Area and volume
Living 58 m²
Other indoor space 8 m²
Attached outdoor space 7 m²
Volume 205 m²
Specs
Apartment type Upper-floor apartment
Build type Existing construction
Build year 1925
Placement On a busy road, In residential area
Type garden No garden
Garage No
External storage No
Cadastral information
City & zipcode Amsterdam 1057 CZ
Owner ship Eigendom Belast Met Erfpacht
Layout
Number of rooms 3 rooms (2 sleeping rooms)
Number of bathrooms 1 bathrooms
Bathroom specifications Washbasin, Vanity unit, Walk-in shower
Number of floors 1 floors
Facilities Aerial cable, Airconditioning, Natural ventilation floors
Show all specifications Show less specifications
hypotheekshop-logo Wat worden mijn maandlasten? Klik hier om een afspraak te maken met een onafhankelijke hypotheekadviseur
Neighborhood & Location
Amount of inhabitants 25855
Amount of homes 14861
Average WOZ value €473200
Amenities nearby
      Household composition

      single

      no kids

      with kids

      Age structure

      0 - 14 year

      15 - 24 year

      25 - 44 year

      45 - 64 year

      65+ year

      Distribution of property type

      tussenwoning

      hoekwoning

      twee-onder-een-kap

      vrijstaand

      appartementen

      Similar in the area

      Same price category Same type house
      Amsterdam
      Oost

      Wagenaarstraat 355

      Upper-floor apartment
      68 m²
      3 rooms
      € 440.000,- Buyer's costs
      View
      Pre-owned icon
      Pre-owned
      Amsterdam
      Oost

      Dijkmeerlaan 365

      Upper-floor apartment
      46 m²
      1 rooms
      € 450.000,- Buyer's costs
      View
      Amsterdam
      West

      Knollendamstraat 70

      Upper-floor apartment
      47 m²
      3 rooms
      € 410.000,- Buyer's costs
      View
      Amsterdam
      Zuidoost

      Wethouder In ‘t Veldstraat 35

      Family home
      97 m²
      185 m²
      5 rooms
      € 470.000,- Buyer's costs
      View
      Under offer
      Amsterdam
      West

      Spitsbergenstraat 101

      Upper-floor apartment
      54 m²
      2 rooms
      € 425.000,- Buyer's costs
      View
      Sustainable icon
      Sustainable
      Amsterdam
      Noord

      Hellingstraat 52

      Upper-floor apartment
      59 m²
      2 rooms
      € 599.000,- Buyer's costs
      View
      Amsterdam
      Oost

      Wagenaarstraat 355

      Upper-floor apartment
      68 m²
      3 rooms
      € 440.000,- Buyer's costs
      View
      Amsterdam
      West

      Nassaukade 306 1

      Upper-floor apartment
      81 m²
      3 rooms
      € 775.000,- Buyer's costs
      View
      Amsterdam
      Zuid

      Karperweg 7 2

      Upper-floor apartment
      68 m²
      3 rooms
      € 599.000,- Buyer's costs
      View
      Pre-owned icon
      Pre-owned
      Amsterdam
      Oost

      Dijkmeerlaan 365

      Upper-floor apartment
      46 m²
      1 rooms
      € 450.000,- Buyer's costs
      View
      Amsterdam
      Zuid

      Legmeerstraat 34 1

      Upper-floor apartment
      59 m²
      2 rooms
      € 575.000,- Buyer's costs
      View
      Amsterdam
      West

      Knollendamstraat 70

      Upper-floor apartment
      47 m²
      3 rooms
      € 410.000,- Buyer's costs
      View
      Amsterdam
      Zuid

      Des Présstraat 2

      Upper-floor apartment
      92 m²
      3 rooms
      € 875.000,- Buyer's costs
      View
      Sustainable icon
      Sustainable
      Under offer
      Amsterdam
      Oost

      Von Zesenstraat 257

      Upper-floor apartment
      42 m²
      2 rooms
      € 350.000,- Buyer's costs
      View
      Under offer
      Amsterdam
      West

      Spitsbergenstraat 101

      Upper-floor apartment
      54 m²
      2 rooms
      € 425.000,- Buyer's costs
      View