Bentveld

Zandvoort

Zandvoortselaan 357

F
€675.000,- Buyer's costs
95 m² living area
289 m² plot
3 rooms
In residential area
1908
Eric Liefveld – RM RT – Mooijekind Vleut Makelaars in Heemstede-Aerdenhout
Eric Liefveld
Partner - Certified Real Estate Agent & Appraiser
023 - 800 02 00
Eric Liefveld – RM RT – Mooijekind Vleut Makelaars in Heemstede-Aerdenhout

Description

Charming semi-detached house with views over the Koningshof and the dunes as a natural backyard. This atmospheric home immediately stands out thanks to its picturesque leaded window panes, wooden shutters and cosy gas fireplace. Featuring a bright living room, two bedrooms (with the possibility of creating a third), a private driveway and beautifully landscaped front, side and rear gardens, this is a wonderful place to come home to.

This charming property, dating from 1908, has a warm and welcoming character. The living room exudes a homely atmosphere, with French doors providing a wonderful connection to the outdoors. Step outside into a beautifully landscaped garden with a water well and a romantic, detached wooden garden house: a green oasis where peace, privacy and nature come together. Thanks to the various terraces, there is always a perfect spot to enjoy the sun – whether you prefer a sunny breakfast in the morning or a long summer evening with friends at the end of the day.

Bentveld is renowned for its peace, space and natural surroundings, and this is evident in every respect. From the rear entrance you can walk straight into the dunes for a walk or cycle ride, and within fifteen minutes you can be on the beach. Nearby you will find Restaurant La Belle, the Kennemer Golf & Country Club, Tennisvereniging Zandvoort, a hockey club and an equestrian centre. Supermarkets, various schools and sports clubs are all within easy cycling distance. Haarlem, Amsterdam and Schiphol are easily accessible, and the NS railway station is just a five-minute walk away. Thanks to a convenient shortcut nearby, you will also experience minimal disturbance from traffic on the Zandvoortselaan.

In short: a characterful home with a sunny garden and a truly unique location in one of the most beautiful areas of Zuid-Kennemerland.

Good to know:
* Living area approx. 95 m² | Plot size 289 m²
* Largely fitted with insulating glazing
* Attractive front, side and rear gardens and private driveway
* Listed (monumental) property
* Bright living room with open aspect and (gas) fireplace
* Two spacious bedrooms with the option to create a third bedroom
* Sunny rear garden with terraces, garden house, covered area and rear access
* Charming windows with leaded panes and awnings
* Water pump for garden irrigation
* Shops, specialist stores and railway station within short cycling distance
* Completion/transfer date by mutual agreement

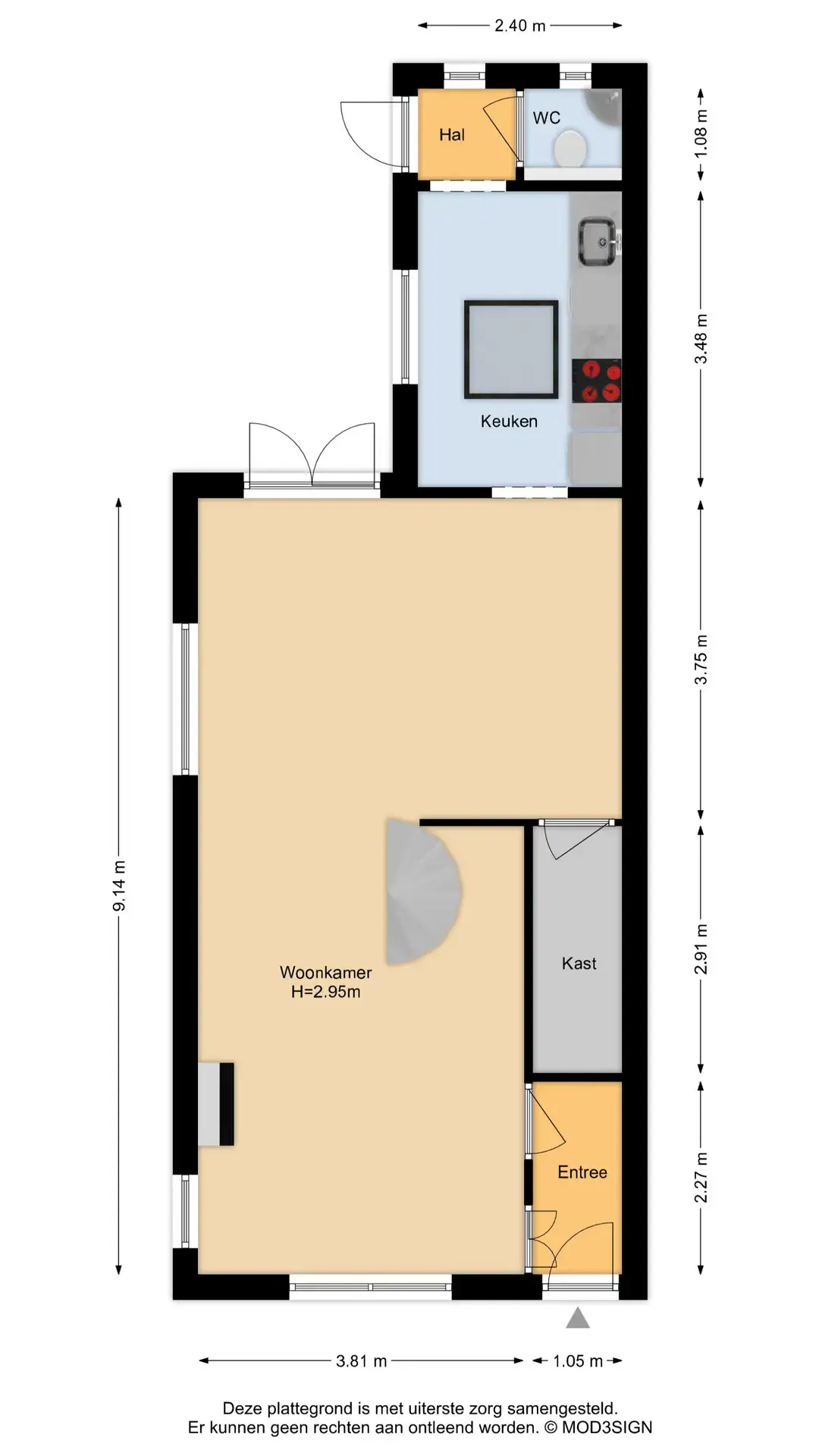
Ground floor
Entrance hall with meter cupboard, leading to the bright living room with (gas) fireplace, spiral staircase and French doors to the garden. Spacious storage cupboard and neat kitchen in extension with built-in appliances. Inner hall with WC and washbasin, central heating cupboard and access to the rear garden with water well, various terraces, detached wooden garden house, covered area and rear access.

First floor
Bright landing. Large bedroom at the rear with two Velux roof windows; easily divisible into two comfortable (bed)rooms thanks to the layout. Neat bathroom with washbasin, WC and shower. Spacious front bedroom with dormer window and built-in cupboards for washing machine and tumble dryer.

Floor plans

Features

General
Price €675.000,- Buyer's costs
Possession In consultation
Status Available
Energy
Energy label F
Isolation Mostly double glazing
Heating CH-boiler, Gas fireplace
Hot water CH-boiler
Boiler Remeha (Ownership)
Area and volume
Living 289 m²
Other indoor space 2 m²
Plot 95 m²
Volume 388 m²
Specs
House type Family home
Build type Existing construction
Build year 1908
Type roof Gable roof
Placement In residential area
Type garden Back garden, Front garden, Side garden
Garage No
External storage Yes
Cadastral information
City & zipcode Bentveld 2116 EN
Plot 95 m²
Owner ship Full ownership
Layout
Number of rooms 3 rooms (2 sleeping rooms)
Number of bathrooms 1 bathrooms
Bathroom specifications Toilet, Shower, Washbasin
Facilities Mechanical ventilation, Aerial cable, External sunshades, Natural ventilation floors
Show all specifications Show less specifications
hypotheekshop-logo Wat worden mijn maandlasten? Klik hier om een afspraak te maken met een onafhankelijke hypotheekadviseur
Neighborhood & Location
Amount of inhabitants 6550
Amount of homes 3365
Average WOZ value €605750
Amenities nearby
      Household composition

      single

      no kids

      with kids

      Age structure

      0 - 14 year

      15 - 24 year

      25 - 44 year

      45 - 64 year

      65+ year

      Distribution of property type

      tussenwoning

      hoekwoning

      twee-onder-een-kap

      vrijstaand

      appartementen

      Similar in the area

      Same price category Same type house

      There are no similar houses found in the same price category

      There are no similar houses found of the same type