Haarlem

Haarlemmerhoutkwartier

Prins Mauritslaan 2 0064

D
103 m² living area
2 rooms
On a quiet road
1961
Jack Tromp - K-RMT - Mooijekind Vleut Makelaars in Haarlem
Jack Tromp
NVM Real Estate Agent
023 - 542 02 44

Description

Discover this comfortable 2-room corner apartment measuring no less than 102m², where light and space go hand in hand! The warm, bright living room, modern kitchen, and spacious bedroom combine to create an ideal mix of comfort and style. With two inviting balconies and breathtaking unobstructed views from the sixth floor, you can enjoy an oasis of peace and space every day. Located in the well-maintained ‘Zuiderhout’ complex in Haarlem-Zuid, this well-maintained apartment is in a prime location: right next to the Netherlands’ oldest city forest, De Haarlemmerhout, and a stone’s throw from the lively city center of Haarlem and the charming Jan van Goyenstraat in Heemstede.

The bright living room, with windows all around, offers a view that never ceases to surprise. The east-facing balcony is perfect for a cup of coffee in the morning sun, while the screens on the south side help to keep the heat out. The modern, corner kitchen is equipped with various appliances and has a south-facing balcony. The comfortable bathroom and spacious bedroom, which is well lit thanks to the many windows, contribute to a pleasant living experience. From the hallway, you reach a practical but very spacious storage room with a wardrobe, connections for a washing machine and dryer, and plenty of storage space for all your belongings.

The location is ideal, right in the heart of the popular Haarlemmerhoutkwartier neighborhood: quiet, spacious, surrounded by greenery, and close to various (local) shops on Jan van Goyenstraat and Binnenweg in Heemstede. The bustling city center of Haarlem, with restaurants, cozy terraces, museums, and theaters, is only a 10-minute bike ride away. The beach and dunes of Bloemendaal and Zandvoort are within 20 minutes by bike, and the highways to Amsterdam, Schiphol, and The Hague are easily accessible.

Good to know
* Living area 103m2
* It is possible to create a second bedroom
* Complex has an elevator
* Window frames and tilt and turn windows will be replaced in 2024 and fitted with screens
* Unobstructed view from both balconies
* East-facing balcony with electric sun blinds
* Shared bicycle storage
* Active owners’ association
* Owners’ association fees €620.97 per month. Including service costs €384.70 per month, including water, including advance heating costs €140 per month, including contribution to Nationaal Warmtefonds loan €78.21 per month
* Shared roof terrace on the 9th floor with views over the city and the forest
* Free parking in the street, charging station available
* A 3-minute walk takes you to the Haarlemmerhout
* A 10-minute bike ride takes you to the Grote Markt
* A 6-minute bike ride takes you to the Binnenweg in Heemstede
* Public transport nearby
* Delivery in consultation

Ground floor
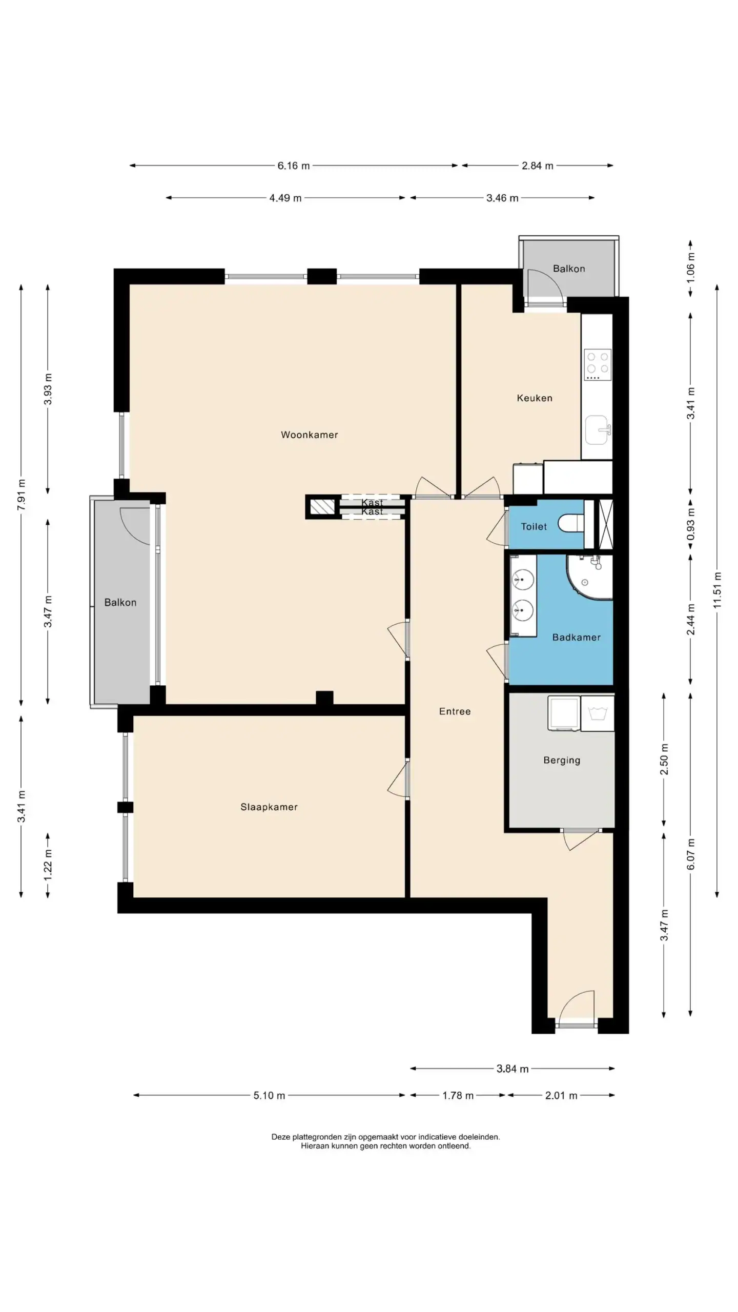
Entrance with doorbells and shared bicycle storage. Elevator or stairs to the sixth floor.

Sixth floor
Entrance to the apartment, hallway with access to various rooms. Storage room with wardrobe, washing machine, and dryer connections. Bedroom with built-in wardrobe. Bathroom with shower and double sink, separate toilet with washbasin. Living room with east-facing balcony. Kitchen with south-facing balcony and equipped with 4-burner induction hob, extractor hood, sink, refrigerator, and oven.

Floor plans

Features

General
Possession In consultation
Status Sold
Energy
Energy label D
Isolation Fully insulated
Heating Collective heating system
Hot water Central facility
Boiler ()
Area and volume
Living 103 m²
Other indoor space 6 m²
Attached outdoor space 6 m²
Volume 328 m²
Specs
Apartment type Walk-up apartment
Build type Existing construction
Build year 1961
Type roof Composite roof
Placement On a quiet road, In residential area, Unobstructed view, In a wooded area
Type garden No garden
Garage No
External storage No
Cadastral information
City & zipcode Haarlem 2012 SP
Owner ship Full ownership
Layout
Number of rooms 2 rooms (1 sleeping rooms)
Number of bathrooms 1 bathrooms
Bathroom specifications Toilet, Shower, Double washbasin
Number of floors 1 floors
Facilities External sunshades, Solar panels floors
Show all specifications Show less specifications
hypotheekshop-logo Wat worden mijn maandlasten? Klik hier om een afspraak te maken met een onafhankelijke hypotheekadviseur
Neighborhood & Location
Haarlemmerhoutkwartier
All neighborhood info
Amount of inhabitants 13050
Amount of homes 6290
Average WOZ value €734571
Amenities nearby
      Household composition

      single

      no kids

      with kids

      Age structure

      0 - 14 year

      15 - 24 year

      25 - 44 year

      45 - 64 year

      65+ year

      Distribution of property type

      tussenwoning

      hoekwoning

      twee-onder-een-kap

      vrijstaand

      appartementen

      Similar in the area

      Same price category Same type house
      New icon
      New
      Haarlem
      Oude Stad

      Turfsteeg 2

      Ground-floor apartment
      72 m²
      1 rooms
      € 450.000,- Buyer's costs
      View
      Sustainable icon
      Sustainable
      Haarlem
      Haarlemmerhoutkwartier

      Bellevuelaan 33

      Gallery-access apartment building
      64 m²
      2 rooms
      € 415.000,- Buyer's costs
      View
      Sustainable icon
      Sustainable
      Haarlem

      Charta 77-Vaart 57

      Gallery-access apartment building
      89 m²
      4 rooms
      € 450.000,- Buyer's costs
      View
      Haarlem
      Transvaalwijk

      Maraisstraat 7

      Family home
      72 m²
      82 m²
      3 rooms
      € 475.000,- Buyer's costs
      View
      Haarlem
      Amsterdamsewijk

      Vooruitgangstraat 79

      Family home
      85 m²
      94 m²
      7 rooms
      € 425.000,- Buyer's costs
      View
      Haarlem
      Amsterdamsewijk

      Romolenstraat 6 RD

      Upper-floor apartment
      84 m²
      4 rooms
      € 485.000,- Buyer's costs
      View
      Haarlem

      Sparrenstraat 30 A

      Upper-floor apartment
      89 m²
      5 rooms
      € 450.000,- Buyer's costs
      View
      Haarlem
      Amsterdamsewijk

      Herensingel 71 II

      Upper-floor apartment
      57 m²
      4 rooms
      € 435.000,- Buyer's costs
      View
      Sustainable icon
      Sustainable
      Haarlem

      Kazerneplein 11

      Walk-up apartment
      123 m²
      3 rooms
      € 750.000,- Buyer's costs
      View
      Sustainable icon
      Sustainable
      Haarlem
      Haarlemmerhoutkwartier

      Crayenesterlaan 134

      Walk-up apartment
      104 m²
      3 rooms
      € 825.000,- Buyer's costs
      View
      Sustainable icon
      Sustainable
      Haarlem
      Haarlemmerhoutkwartier

      Wagenweg 10 C

      Walk-up apartment
      75 m²
      2 rooms
      € 525.000,- Buyer's costs
      View
      Haarlem
      Oude Stad

      Wilhelminastraat 35 A

      Walk-up apartment
      28 m²
      2 rooms
      € 275.000,- Buyer's costs
      View
      Sustainable icon
      Sustainable
      Haarlem
      Haarlemmerhoutkwartier

      Wagenmakerslaan 10

      Walk-up apartment
      96 m²
      2 rooms
      € 745.000,- Buyer's costs
      View
      Haarlem

      Ruslandstraat 25

      Walk-up apartment
      70 m²
      3 rooms
      € 325.000,- Buyer's costs
      View
      Pre-owned icon
      Pre-owned
      Haarlem
      Boerhaavewijk

      Sint Maartenpad 19

      Walk-up apartment
      182 m²
      3 rooms
      € 795.000,- Buyer's costs
      View
      Sustainable icon
      Sustainable
      Haarlem
      Houtvaartkwartier

      Menno Simonszplein 236

      Walk-up apartment
      92 m²
      3 rooms
      € 705.000,- incl. costs
      View