Hoofddorp

Hyde Park

Hortastraat 42

A+
€392.500,- incl. costs
48 m² living area
2 rooms
By a park
2026
Wendela Klusman - A-RMT Nieuwbouwadviseur - Mooijekind Vleut Makelaars in Haarlem
Wendela Klusman
New Build Advisor - A-RMT
023 - 303 34 84

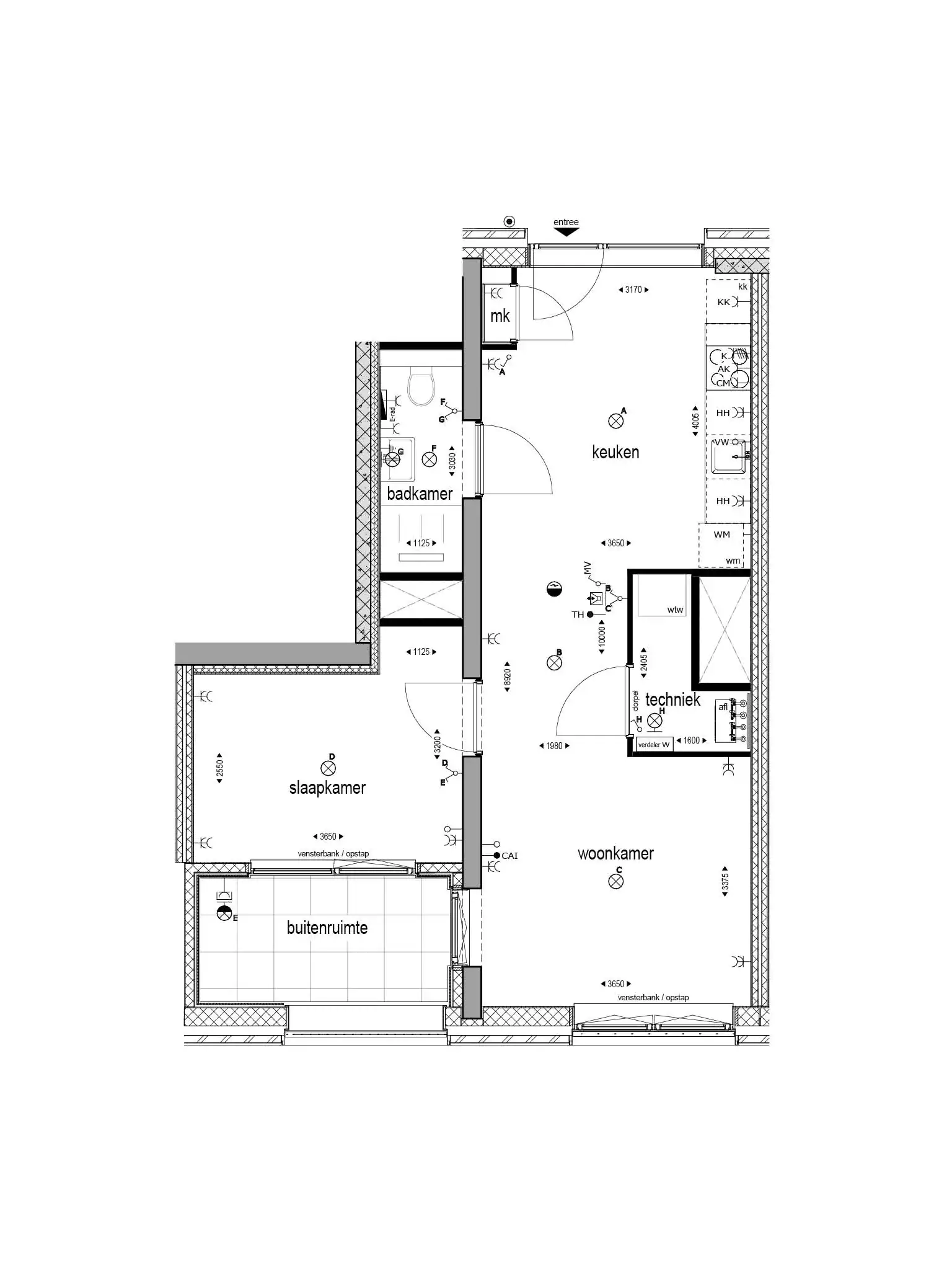
Floor plans

Features

General
Price €392.500,- incl. costs
Possession In consultation
Status Available
Energy
Energy label A_P
Isolation Roof insulation, Wall insulation, Floor insulation, Double glazing, Fully insulated
Heating Full underfloor heating, Heat pump, Heat recovery system
Boiler ()
Area and volume
Living 48 m²
Other indoor space 5 m²
Attached outdoor space 5 m²
Volume 147 m²
Specs
Apartment type Gallery-access apartment building
Build type Newly Built
Build year 2026
Placement By a park, On a quiet road, Down town, In residential area
Type garden No garden
Garage No
External storage No
Cadastral information
City & zipcode Hoofddorp 2132 NH
Layout
Number of rooms 2 rooms (1 sleeping rooms)
Number of bathrooms 1 bathrooms
Bathroom specifications Toilet, Shower, Washbasin
Number of floors 1 floors
Facilities Mechanical ventilation, Elevator, Fiber optic cable floors
Show all specifications Show less specifications
hypotheekshop-logo Wat worden mijn maandlasten? Klik hier om een afspraak te maken met een onafhankelijke hypotheekadviseur
Neighborhood & Location
Amount of inhabitants 195
Amount of homes 120
Average WOZ value €231000
Amenities nearby
      Household composition

      single

      no kids

      with kids

      Age structure

      0 - 14 year

      15 - 24 year

      25 - 44 year

      45 - 64 year

      65+ year

      Distribution of property type

      tussenwoning

      hoekwoning

      twee-onder-een-kap

      vrijstaand

      appartementen

      Similar in the area

      Same price category Same type house
      Sustainable icon
      Sustainable
      Hoofddorp
      Overbos

      Klaterbos 125

      Family home
      76 m²
      137 m²
      3 rooms
      € 425.000,- Buyer's costs
      View
      Sustainable icon
      Sustainable
      Hoofddorp
      Centrum

      Wijkermeerstraat 19 D

      Gallery-access apartment building
      83 m²
      4 rooms
      € 582.500,- incl. costs
      View