Zandvoort

Zandvoort

Grote Krocht 24 a

C
€415.000,- Buyer's costs
79 m² living area
3 rooms
Down town
1923
Gerard Vleut – RM RT – Mooijekind Vleut Makelaars in Haarlem
Gerard Vleut
Certified Real Estate Agent & Appraiser – Residential / Commercial
023 - 542 02 44

Description

Located in the cozy village center, this charming 3-room upstairs apartment is situated on the first floor and features a spacious southwest-facing rooftop terrace. A bright living room, two full-sized bedrooms, and a wonderful outdoor space make this a particularly pleasant home. Where? In a central location, with the beach, dunes, shops, and public transport all within walking distance.

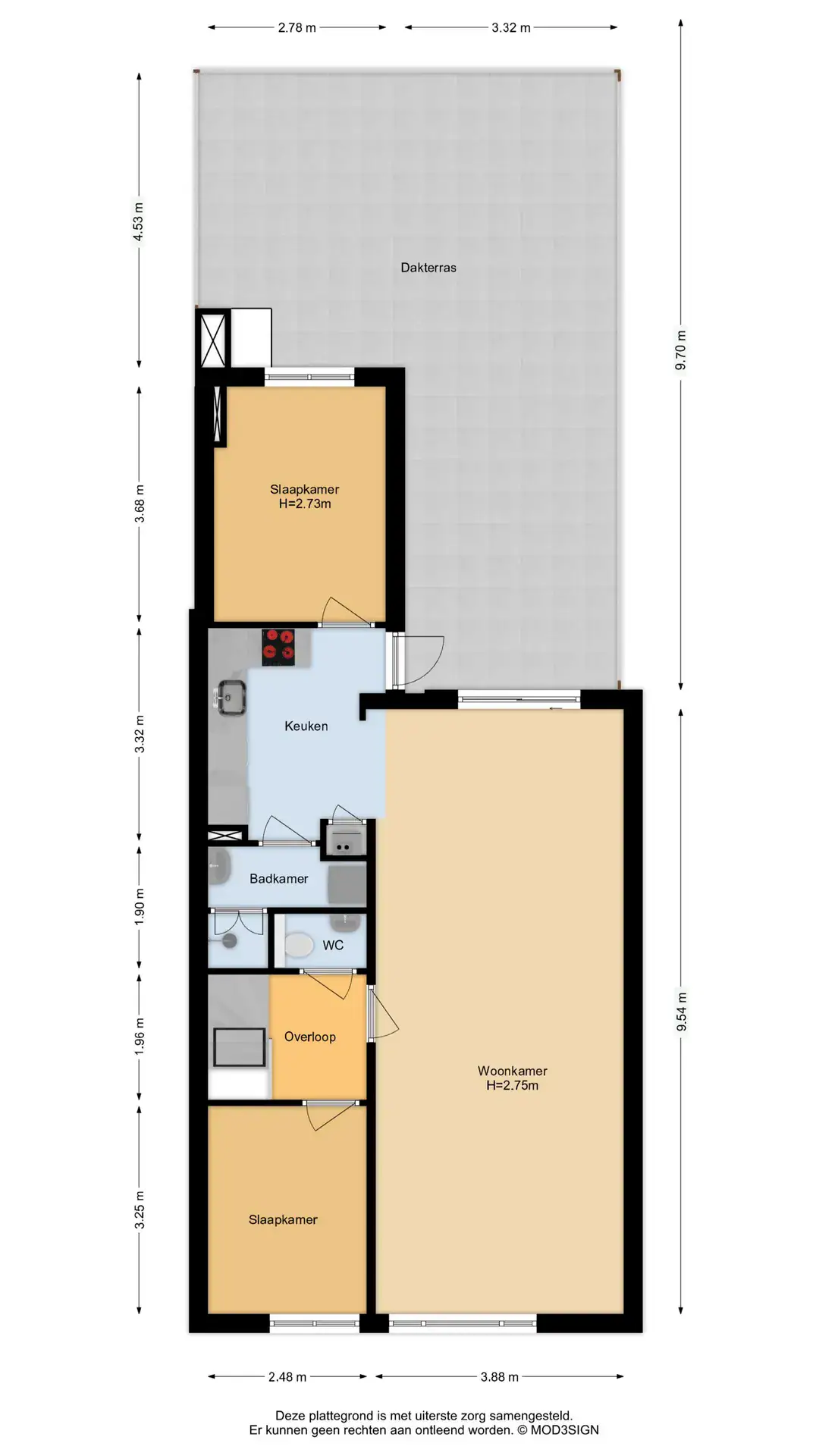
This upstairs apartment offers a practical layout and plenty of natural light. Via the private entrance on the ground floor, you reach the apartment on the first floor. The living room is spacious and bright, forming the heart of the home. Thanks to the sliding doors, the living area is directly connected to the generous rooftop terrace, allowing indoor and outdoor spaces to blend seamlessly.

The open kitchen connects smoothly to the living room and is equipped with various built-in appliances. The property has two bedrooms, one at the front and one at the rear. The bathroom is practically designed and includes a shower, sink, and a washer/dryer setup.

The rooftop terrace, facing southwest, is an absolute eye-catcher. Here, you can enjoy the sun for most of the day, with plenty of space for a lounge area and a dining table. A wonderful place to relax or enjoy drinks with friends and family.

The location is ideal: right in the lively center and within a short distance of the beach (approx. 5 minutes) and the dunes (approx. 8 minutes). In addition, shops, schools, public transport, and various amenities are in the immediate vicinity.

Good to know:
*Living area approx. 79 m²
*Spacious southwest-facing rooftop terrace
*Energy label C
*Fully equipped with double glazing
*Parking by permit
*Draft deed of division available (final division upon transfer)
*Homeowners’ association (VvE) in formation, estimated contribution €147.64 per month
*Transfer in consultation, can be quick

Ground floor
Private entrance, meter cupboard, and staircase to the first floor.

First floor
Landing with intercom and separate toilet with small sink. Bedroom at the front. Spacious, bright living room with sliding doors to the sunny rooftop terrace. Open kitchen with built-in appliances, including a dishwasher, gas stove, combination oven, refrigerator, and freezer. Bathroom with shower, sink, and washer/dryer setup. Second bedroom at the rear. The large rooftop terrace is accessible from both the living room and the kitchen.

In short: a charming and centrally located upstairs apartment with a wonderfully sunny rooftop terrace—definitely worth a viewing!

Floor plans

Features

General
Price €415.000,- Buyer's costs
Possession In consultation
Status Available
Energy
Energy label C
Isolation Roof insulation, Floor insulation, Double glazing
Heating CH-boiler
Hot water CH-boiler
Boiler Intergas (Ownership)
Area and volume
Living 79 m²
Other indoor space 46 m²
Attached outdoor space 46 m²
Volume 273 m²
Main garden 46 m²
Specs
Apartment type Upper-floor apartment
Build type Existing construction
Build year 1923
Placement Down town
Type garden Sun terrace
Garage No
External storage No
Cadastral information
City & zipcode Zandvoort 2042 LW
Owner ship Full ownership
Layout
Number of rooms 3 rooms (2 sleeping rooms)
Number of bathrooms 1 bathrooms
Bathroom specifications Shower, Washbasin
Number of floors 1 floors
Facilities Mechanical ventilation, Aerial cable floors
Show all specifications Show less specifications
hypotheekshop-logo Wat worden mijn maandlasten? Klik hier om een afspraak te maken met een onafhankelijke hypotheekadviseur
Neighborhood & Location
Amount of inhabitants 6550
Amount of homes 3365
Average WOZ value €605750
Amenities nearby
      Household composition

      single

      no kids

      with kids

      Age structure

      0 - 14 year

      15 - 24 year

      25 - 44 year

      45 - 64 year

      65+ year

      Distribution of property type

      tussenwoning

      hoekwoning

      twee-onder-een-kap

      vrijstaand

      appartementen

      Similar in the area

      Same price category Same type house

      There are no similar houses found in the same price category

      There are no similar houses found of the same type