Haarlem

Oude Stad

Popelingstraat 15

E
€500.000,- Buyer's costs
69 m² living area
51 m² plot
3 rooms
On a quiet road
1890
Maarten Bos – RM RT – Mooijekind Vleut Makelaars in Haarlem
Maarten Bos
Partner - Certified Estate Agent
023 - 542 02 44

Description

A true gem on the most charming street in Haarlem, located in the popular “Vijfhoek” district, also known as the Jordaan of Haarlem. This charming and warm home features two bedrooms, a beautiful roof terrace, a city garden, and approximately 70 m² of living space. The house is also situated in a wonderful, friendly neighborhood where neighbors know each other, regular street parties are organized, and a cozy, close-knit atmosphere prevails. Thanks to the smart layout, abundant natural light, and outdoor spaces, the home feels surprisingly spacious.

It can hardly be said often enough: from the moment you arrive, this home immediately feels warm and inviting. The ground floor consists of a bright living area where the living and dining rooms flow seamlessly into one another, creating a pleasant, open, and spacious atmosphere where living and dining come together perfectly. The fireplace and custom-built cabinet form a warm focal point in the living room, making it a wonderful place to relax. French doors from the living room open onto the city garden, where a special view of the church tower at Nieuwe Kerksplein immediately catches the eye. Both the living room and the garden provide access to the kitchen and the separate toilet. Under the staircase there is also a practical storage space, ideal for hanging coats.

On the first floor, at the front of the house, there is an attractive bedroom with a charming small dormer window. On the landing you will find the bathroom, finished in a stylish wood-look design that creates a warm appearance. At the rear of the house is the second bedroom. From this room you have access to a wonderful outdoor space: a spacious roof terrace with plenty of privacy, where you can fully enjoy the fresh air and peaceful surroundings.

The location in the beloved Vijfhoek district is ideal: right in the city center yet wonderfully quiet. The Vijfhoek is known for its small, picturesque streets filled with charming ateliers and cozy cafés and restaurants. The vibrant city life is literally just around the corner. Shops, ateliers, cafés, restaurants, nightlife, and cultural venues such as the Frans Hals Museum, the Toneelschuur theatre, the Stadsschouwburg, the Philharmonie, and the Haarlemmerhout park are all within walking distance. Major roads to Amsterdam and Schiphol are nearby, and the dunes and beaches of Bloemendaal and Zandvoort are about a 20-minute bike ride away.

Good to know
* Built in 1890
* Energy label E
* Located in a protected cityscape area
* Foundation on “steel” (masonry foundation)
* City garden and sunny roof terrace facing northeast, with the roof terrace receiving plenty of sunlight thanks to its open position
* Spacious attic storage loft
* Car-free street in the heart of the Vijfhoek
* Parking via resident parking permit
* Exterior painting completed in August 2024
* New central heating boiler installed in 2022
* Mechanical duct ventilation in the bathroom cleaned in 2026
* Fiber-optic internet available
* Completion date in consultation

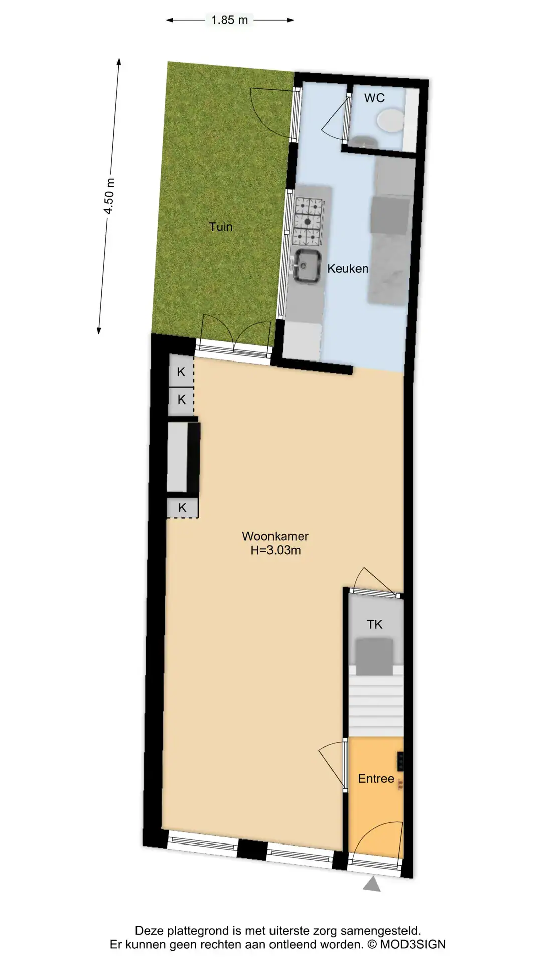
Ground floor
Entrance with access to the dining and living room with chimney flue. Open kitchen equipped with an oven, dishwasher, and 5-burner gas stove. From the living room there is access to the northeast-facing city garden. There is also a separate toilet.

First floor
Landing with access to two bedrooms and the bathroom. The bathroom features a walk-in shower with rain and hand shower, toilet, towel radiator, sink, and a heated mirror. One bedroom is located at the front of the house, and the second bedroom at the rear has access to the roof terrace. And an attic storage loft.

Floor plans

Features

General
Price €500.000,- Buyer's costs
Possession In consultation
Status Verkocht Onder Voorbehoud
Energy
Energy label E
Isolation Roof insulation, Floor insulation, Fully insulated
Heating CH-boiler
Hot water CH-boiler
Boiler Intergas Kombi Kompakt HRE 36 / 30 A (Ownership)
Area and volume
Living 69 m²
Other indoor space 11 m²
Attached outdoor space 11 m²
Plot 51 m²
Volume 269 m²
Main garden 8 m²
Specs
House type Family home
Build type Existing construction
Build year 1890
Type roof Gable roof
Placement On a quiet road, Down town, Sheltered setting
Type garden Back garden
Garage No
External storage No
Cadastral information
City & zipcode Haarlem 2011 ZL
Plot 51 m²
Owner ship Full ownership
Layout
Number of rooms 3 rooms (2 sleeping rooms)
Facilities Mechanical ventilation, Aerial cable, Smoke duct, Natural ventilation floors
Show all specifications Show less specifications
hypotheekshop-logo Wat worden mijn maandlasten? Klik hier om een afspraak te maken met een onafhankelijke hypotheekadviseur
Neighborhood & Location
Amount of inhabitants 14750
Amount of homes 8622
Average WOZ value €512667
Amenities nearby
      Household composition

      single

      no kids

      with kids

      Age structure

      0 - 14 year

      15 - 24 year

      25 - 44 year

      45 - 64 year

      65+ year

      Distribution of property type

      tussenwoning

      hoekwoning

      twee-onder-een-kap

      vrijstaand

      appartementen

      Similar in the area

      Same price category Same type house
      Sustainable icon
      Sustainable
      Haarlem
      Parkwijk

      Alexander Polaplein 11

      Family home
      118 m²
      135 m²
      5 rooms
      € 550.000,- Buyer's costs
      View
      Haarlem
      Ter Kleefkwartier

      Hogerwoerdstraat 40

      Upper-floor apartment
      94 m²
      4 rooms
      € 500.000,- Buyer's costs
      View
      Haarlem
      Amsterdamsewijk

      Romolenstraat 6 RD

      Upper-floor apartment
      84 m²
      6 rooms
      € 500.000,- Buyer's costs
      View
      Sustainable icon
      Sustainable
      Haarlem
      Oude Stad

      Justine de Gouwerhof 50

      Maisonnette
      82 m²
      4 rooms
      € 500.000,- Buyer's costs
      View
      Open house icon
      Open house
      Haarlem
      Oude Stad

      Nassauplein 61

      Gallery-access apartment building
      71 m²
      2 rooms
      € 550.000,- Buyer's costs
      View
      Sustainable icon
      Sustainable
      Haarlem
      Europawijk

      Engelandlaan 123 H

      Walk-up apartment
      79 m²
      3 rooms
      € 465.000,- Buyer's costs
      View
      Haarlem
      Haarlemmerhoutkwartier

      Prins Mauritslaan 2 0064

      Walk-up apartment
      103 m²
      2 rooms
      € 450.000,- Buyer's costs
      View
      Sustainable icon
      Sustainable
      Haarlem
      Ter Kleefkwartier

      Judith Leysterstraat 6

      Family home
      134 m²
      131 m²
      5 rooms
      € 875.000,- Buyer's costs
      View
      Haarlem
      Transvaalwijk

      President Steijnstraat 35

      Family home
      107 m²
      95 m²
      5 rooms
      € 685.000,- Buyer's costs
      View
      Sustainable icon
      Sustainable
      Haarlem
      Parkwijk

      Alexander Polaplein 11

      Family home
      118 m²
      135 m²
      5 rooms
      € 550.000,- Buyer's costs
      View
      Sustainable icon
      Sustainable
      Haarlem
      Parkwijk

      Wim Sonneveldstraat 8

      Family home
      127 m²
      119 m²
      5 rooms
      € 675.000,- Buyer's costs
      View
      Haarlem
      Houtvaartkwartier

      Koppestokstraat 21

      Family home
      133 m²
      146 m²
      8 rooms
      € 725.000,- Buyer's costs
      View
      Haarlem
      Indische wijk

      Mentawistraat 38

      Family home
      132 m²
      147 m²
      7 rooms
      € 800.000,- Buyer's costs
      View
      Haarlem
      Waarder- en Veerpolder

      Delftlaan 9

      Family home
      207 m²
      152 m²
      7 rooms
      € 1.175.000,- Buyer's costs
      View
      Haarlem
      Amsterdamsewijk

      Teding van Berkhoutstraat 36

      Family home
      107 m²
      86 m²
      4 rooms
      € 650.000,- Buyer's costs
      View
      Sustainable icon
      Sustainable
      Haarlem
      Ter Kleefkwartier

      Verspronckweg 177

      Family home
      165 m²
      161 m²
      6 rooms
      € 1.250.000,- Buyer's costs
      View
      Haarlem
      Te Zaanenkwartier

      Planetenplein 17

      Family home
      144 m²
      147 m²
      8 rooms
      € 825.000,- Buyer's costs
      View