Amsterdam

Noord

Hellingstraat 52

A+
€599.000,- k.k.
59 m² wonen
2 kamers
Aan Rustige Weg
2020
Isabelle Band – RM RT – Mooijekind Vleut Makelaars in Amsterdam
Isabelle Band
Partner - Register Makelaar en Register Taxateur - Expat broker
020 - 800 23 83

Beschrijving

Wonen op een unieke plek aan het IJ! Deze woning, gelegen op het NDSM terrein in het prachtige Pontkade-gebouw is echt een must-see. Hoogwaardig afgewerkt, goed ingedeeld en met een zonnig balkon en vrij uitzicht over het IJ wat nooit verveeld!

Omgeving
Deze creatieve locatie in Amsterdam Noord bruist en heeft alle voorzieningen binnen handbereik. In het complex is onder andere een Albert Heijn supermarkt, bakkerij Brood en sportschool TrainMore te vinden. Op korte loopafstand vind je een Hema, Bagels & Beans, een apotheek, gezondheidscentra en tandarts. Er zijn tal van gezellige eetgelegenheden zoals: Pllek, IJver, de IJkantine, Cannibal Royale, Cafe Noorderlicht, Fred’s Kitchen en Loetje. De veerpont bevindt zich direct voor de deur en heeft verbinding naar Centraal-Station en Pontsteiger. Voor de natuurliefhebber is er op korte afstand recreatie en natuurgebied het Twiske. Onbekender, maar heel dichtbij, ligt de Noorder IJ plas met haar groene wandelpaden, waar je Schotse hooglanders tegenkomt. In de buurt vind je inspirerende exposities, tentoonstellingen en een grote keus aan leuke evenementen.

Bijzonderheden:
* Bouwjaar 2020
* Energielabel A+
* Woonoppervlakte ca. 59m2
* Balkon op het zuidwesten
* PVC visgraat parketvloer
* Erfpacht afgekocht tot 15 augustus 2067
* Maandelijkse VvE bijdrage: € 131,-
* Eigen berging in de onderbouw
* Gemeenschappelijke fietsenstalling
* Gemeenschappelijke binnentuin
* Parkeerplaats separaat te koop voor € 60.000,- k.k.

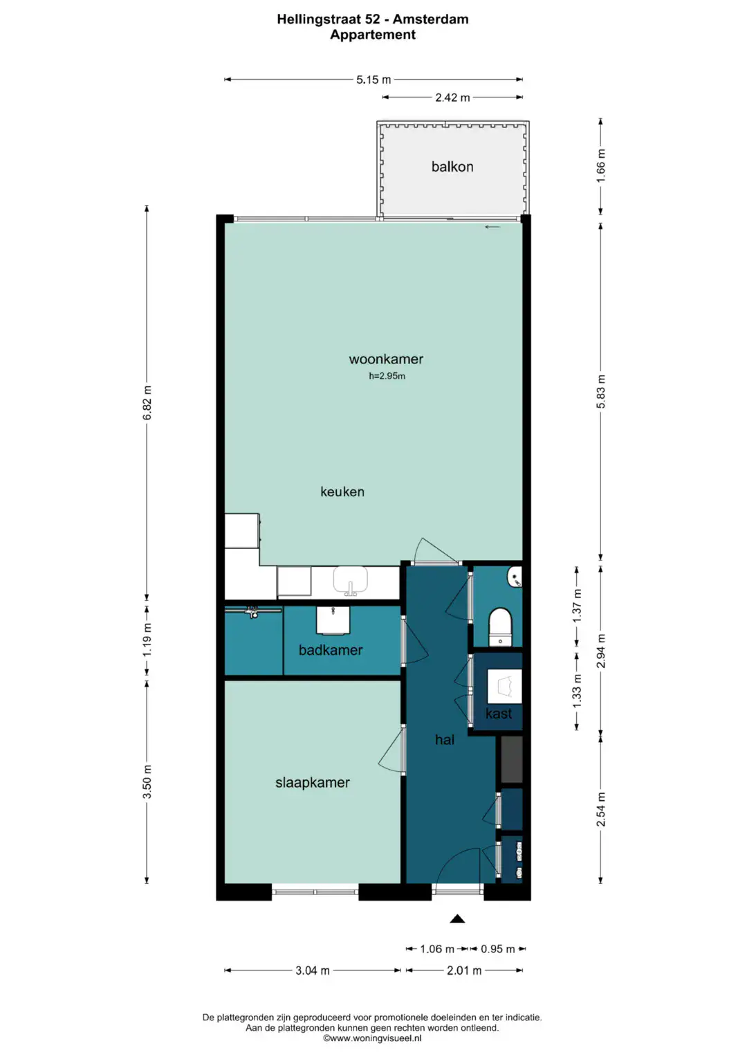
Het appartement
Gelegen op de vierde verdieping van een verzorgd appartementencomplex in Amsterdam bevindt zich dit praktisch ingedeelde en lichte appartement aan de Hellingstraat. Via de centrale entree met lift en trappenhuis bereik je de woning.

Bij binnenkomst stap je in een ruime hal/gang die toegang biedt tot alle vertrekken. Aan de achterzijde van het appartement bevindt zich de royale woonkamer met open keuken. Deze lichte leefruimte staat in directe verbinding met het zonnige balkon van circa 6 m², een fijne plek om buiten te zitten.

De slaapkamer is eveneens aan de rustige achterzijde gelegen aan de binnentuin en heeft een prettig formaat, waardoor er voldoende ruimte is voor een groot bed en kastruimte. De moderne badkamer is luxe uitgevoerd en voorzien van een douche, wastafelmeubel en toilet.

Daarnaast beschikt het appartement over een eigen berging in de onderbouw, een gemeenschappelijke fietsenberging en een gezamenlijke tuin. Er is de mogelijkheid voor de koop van een eigen parkeerplaats in de ondergelegen parkeergarage, vraagprijs: € 60.000,- k.k.

Kortom, een comfortabel en zo te betrekken luxe appartement op een aantrekkelijke locatie.

Plattegronden

Kenmerken

Algemeen
Prijs €599.000,- k.k.
Aanvaarding In Overleg
Status Beschikbaar
Energie
Energie label A_P
Isolatie Vloerisolatie
Verwarming Stadsverwarming
Warm water Stadsverwarming
CV-ketel ()
Oppervlakte en inhoud
Wonen 59 m²
Overige inpandige ruimte 9 m²
Gebouwgebonden buitenruimte 4 m²
Inhoud 210 m²
Specificaties
Soort appartement Bovenwoning
Soort bouw Bestaande Bouw
Bouwjaar 2020
Soort dak Plat Dak
Ligging Aan Rustige Weg, Vrij Uitzicht, Aan Vaarwater
Type tuin Geen Tuin
Garage Ja
Externe berging Ja
Kadastrale gegevens
Plaats & postcode Amsterdam 1033 WW
Eigendomssituatie Eigendom Belast Met Erfpacht
Indeling
Aantal kamers 2 kamers (1 slaapkamers)
Aantal badkamers 1 badkamers
Badkamervoorzieningen Douche, Wastafel
Aantal woonlagen 1 Verdiepingen
Voorzieningen Mechanische ventilatie, Lift, Zonnepanelen, Balansventilatie Verdiepingen
Toon alle kenmerken Toon minder kenmerken
hypotheekshop-logo Wat worden mijn maandlasten? Klik hier om een afspraak te maken met een onafhankelijke hypotheekadviseur
Buurt & ligging
Aantal inwoners 16530
Aantal woningen 8448
Gem. WOZ-waarde €481167
Voorzieningen in de buurt
      Samenstelling huishoudens

      single

      zonder kinderen

      met kinderen

      Leeftijdsopbouw

      0 - 14 jaar

      15 - 24 jaar

      25 - 44 jaar

      45 - 64 jaar

      65+ jaar

      Verdeling type woning

      tussenwoning

      hoekwoning

      twee-onder-een-kap

      vrijstaand

      appartementen

      Vergelijkbaar in de buurt

      Zelfde prijscategorie Zelfde type woning
      Pre-owned icon
      Pre-owned
      Amsterdam

      Sausalitolaan 20

      Benedenwoning
      73 m²
      2 kamers
      € 625.000,- k.k.
      Bekijk
      Duurzaam icon
      Duurzaam
      Amsterdam
      Zuid

      Karperweg 7 2

      Bovenwoning
      68 m²
      3 kamers
      € 599.000,- k.k.
      Bekijk
      Amsterdam
      Zuid

      Legmeerstraat 34 1

      Bovenwoning
      59 m²
      2 kamers
      € 575.000,- k.k.
      Bekijk
      Nieuw icon
      Nieuw
      Amsterdam
      West

      Nassaukade 306 1

      Bovenwoning
      81 m²
      3 kamers
      € 749.000,- k.k.
      Bekijk
      Nieuw icon
      Nieuw
      Amsterdam
      West

      Nova Zemblastraat 526

      Bovenwoning
      41 m²
      2 kamers
      € 340.000,- k.k.
      Bekijk
      Amsterdam
      West

      Hoofdweg 291 3

      Bovenwoning
      58 m²
      3 kamers
      € 450.000,- k.k.
      Bekijk
      Duurzaam icon
      Duurzaam
      Amsterdam
      Zuid

      Karperweg 7 2

      Bovenwoning
      68 m²
      3 kamers
      € 599.000,- k.k.
      Bekijk
      Pre-owned icon
      Pre-owned
      Amsterdam
      Oost

      Dijkmeerlaan 365

      Bovenwoning
      46 m²
      1 kamers
      € 450.000,- k.k.
      Bekijk
      Amsterdam
      Zuid

      Legmeerstraat 34 1

      Bovenwoning
      59 m²
      2 kamers
      € 575.000,- k.k.
      Bekijk
      Amsterdam
      Zuid

      Des Présstraat 2

      Bovenwoning
      92 m²
      3 kamers
      € 875.000,- k.k.
      Bekijk
      Onder bod
      Amsterdam
      Oost

      Wagenaarstraat 355

      Bovenwoning
      68 m²
      3 kamers
      € 440.000,- k.k.
      Bekijk
      Onder bod
      Amsterdam
      West

      Spitsbergenstraat 101

      Bovenwoning
      54 m²
      2 kamers
      € 425.000,- k.k.
      Bekijk
      Onder bod
      Amsterdam
      West

      Knollendamstraat 70

      Bovenwoning
      47 m²
      3 kamers
      € 410.000,- k.k.
      Bekijk