Amsterdam

West

Spitsbergenstraat 101

C
€425.000,- k.k.
54 m² wonen
2 kamers
Aan Rustige Weg
1984
Isabelle Band – RM RT – Mooijekind Vleut Makelaars in Amsterdam
Isabelle Band RM RT
Partner - Register Makelaar Taxateur / Expat Broker
020 - 800 23 83
Isabelle Band – RM RT – Mooijekind Vleut Makelaars in Amsterdam

Beschrijving

*English version Below*
Twee-kamer bovenappartement met prachtig uitzicht aan zowel de voorkant als de achterkant van de woning. De woning is gerenoveerd in 2015 en de erfpacht is eeuwigdurend vastgeklikt onder gunstige voorwaarden.

Het appartement is centraal gelegen in stadsdeel West, naast de Houthavens, in de charmante en gezellige Spaarndammerbuurt. Direct om de hoek bevindt zich de Spaarndammerstraat, een levendige straat met tal van winkels voor dagelijkse boodschappen en sfeervolle cafés en restaurants, zoals Compartir, de Pizzabakkers en café De Walvis. Het Westerpark met het cultuurpark Westergasfabriek, de bruisende Haarlemmerstraat en de Jordaan zijn allemaal binnen handbereik.
Op loopafstand vindt u opstapplaatsen voor bus, pont en tram. Het Centraal Station is snel bereikbaar; binnen 6 minuten bent u er met de fiets of bus. Bussen 48 en 22 naar Amsterdam Oost en Station Sloterdijk stoppen in de Spaarndammerstraat. De pont naar Amsterdam Noord vertrekt naast de Pontsteiger, op slechts 500 meter afstand. Ook met de auto is het appartement goed bereikbaar via de S101, S102 en S103 en binnen slechts 6 minuten is de A10 aan te rijden. Parkeren is mogelijk middels betaald parkeren op de openbare weg. Voor meer informatie over parkeervergunningen en wachttijden kunt u terecht op www.amsterdam.nl/parkeren.

Goed om te weten
* Woonoppervlakte: ca. 54m2 (NVM meetrapport aanwezig)
* Balkon van ca. 5m2
* Houten kozijnen met dubbel glas door de gehele woning
* Energielabel C
* Periodieke bijdrage VvE: € 120,96 per maand
* Gelegen op erfpachtgrond, huidige tijdvak tot 16-06-2035 is afgekocht en daarna vastgeklikt onder gunstige voorwaarde
* Oplevering in overleg

Het appartement
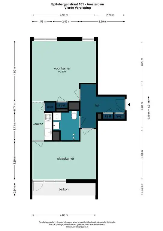
Via het gemeenschappelijk trappenhuis bereikt u de voordeur op de vierde verdieping. Bij binnenkomst treft u twee bergkasten en een hal die toegang biedt tot de diverse vertrekken. De woonkamer is ruim en licht en beschikt over een ruime bergkast. Vanuit de woonkamer bereikt u de halfopen keuken, waar alle benodigde apparatuur aanwezig is. Boven de keuken zorgt een fraai daklicht voor extra lichtinval.
Aan de achterzijde van het appartement bevindt zich de ruime slaapkamer met voldoende ruimte voor een tweepersoonsbed, kledingkasten en eventueel een thuiswerkplek. De slaapkamer geeft toegang tot het balkon, dat een prachtig uitzicht biedt op de groene binnentuin. De badkamer is voorzien van een wastafel, een inloopdouche, een toilet en een aansluiting voor uw wasmachine. De meterkast bevindt zich in het gemeenschappelijk trappenhuis. In de onderbouw is er een gemeenschappelijke (fietsen)berging beschikbaar.

*English version*
Two-room upper apartment with stunning views at both the front and back of the property. The apartment was renovated in 2015, and the ground lease has been perpetually fixed under favorable conditions.

The apartment is centrally located in the West district, next to the Houthavens, in the charming and lively Spaarndammerbuurt. Just around the corner is Spaarndammerstraat, a bustling street with numerous shops for daily groceries and cozy cafés and restaurants, such as Compartir, De Pizzabakkers, and café De Walvis. The Westerpark with the cultural park Westergasfabriek, the vibrant Haarlemmerstraat, and the Jordaan are all within easy reach. Within walking distance, you will find stops for buses, ferries, and trams. Central Station is quickly accessible; you can reach it within 6 minutes by bike or bus. Buses 48 and 22 to Amsterdam East and Sloterdijk Station stop on Spaarndammerstraat. The ferry to Amsterdam North departs next to the Pontsteiger, just 500 meters away. The apartment is also easily accessible by car via the S101, S102, and S103 and in just 6 minutes you can reach the A10. Parking is available through paid parking on public streets. For more information about parking permits and waiting times, please visit www.amsterdam.nl/parkeren.

Good to know
* Living area: approximately 54m² (NVM measurement report available)
* Balcony of approximately 5m²
* Wooden window frames with double glazing throughout the entire apartment
* Energy label C
* Periodic VvE contribution: €120,96 per month
* Located on leasehold land, current period bought off until 16-06-2035 and then perpetually fixed under favorable conditions
* Delivery in consultation

The apartment
Through the communal staircase you reach the front door on the fourth floor. Upon entering, you will find two storage closets and a hallway that provides access to various rooms. The living room is spacious and bright and has a big storage closet. From the living room, you can access the semi-open kitchen, which is equipped with all necessary appliances. Above the kitchen, a beautiful skylight provides additional natural light. At the rear of the apartment is the spacious bedroom with enough room for a double bed, a wardrobe and a desk setup. The bedroom also has access to the balcony offering a stunning view of the green inner garden. The bathroom is equipped with a sink, a walk-in shower, a toilet, and a connection for your washing machine. The electrical panel is located in the communal staircase. In the basement, there is a communal (bicycle) storage area available.

Plattegronden

Kenmerken

Algemeen
Prijs €425.000,- k.k.
Aanvaarding In Overleg
Status Beschikbaar
Energie
Energie label C
Isolatie Dubbel glas
Verwarming Cv ketel
Warm water Cv ketel
CV-ketel Remeha (Eigendom)
Oppervlakte en inhoud
Overige inpandige ruimte 5 m²
Gebouwgebonden buitenruimte 5 m²
Perceel 54 m²
Inhoud 175 m²
Specificaties
Soort bouw Bestaande Bouw
Bouwjaar 1984
Soort dak Plat Dak
Ligging Aan Rustige Weg, In Woonwijk, Vrij Uitzicht, Open Ligging
Type tuin Geen Tuin
Garage Nee
Externe berging Nee
Kadastrale gegevens
Plaats & postcode Amsterdam 1013 CL
Perceel 54 m²
Eigendomssituatie Eigendom Belast Met Erfpacht
Indeling
Aantal kamers 2 kamers (1 slaapkamers)
Aantal badkamers 1 badkamers
Badkamervoorzieningen Toilet, Wastafel, Wastafelmeubel, Inloopdouche, Wasmachineaansluiting
Aantal woonlagen 1 Verdiepingen
Voorzieningen Tv kabel Verdiepingen
Toon alle kenmerken Toon minder kenmerken
hypotheekshop-logo Wat worden mijn maandlasten? Klik hier om een afspraak te maken met een onafhankelijke hypotheekadviseur
Buurt & ligging
Aantal inwoners 7960
Aantal woningen 4864
Gem. WOZ-waarde €449500
Voorzieningen in de buurt
      Samenstelling huishoudens

      single

      zonder kinderen

      met kinderen

      Leeftijdsopbouw

      0 - 14 jaar

      15 - 24 jaar

      25 - 44 jaar

      45 - 64 jaar

      65+ jaar

      Verdeling type woning

      tussenwoning

      hoekwoning

      twee-onder-een-kap

      vrijstaand

      appartementen

      Vergelijkbaar in de buurt

      Zelfde prijscategorie Zelfde type woning
      Duurzaam icon
      Duurzaam
      Amsterdam
      West

      Nova Zemblastraat 15 D

      Bovenwoning
      71 m²
      71 m²
      3 kamers
      € 425.000,- k.k.
      Bekijk
      Amsterdam
      Oost

      Riouwstraat 99 D

      Bovenwoning
      50 m²
      2 kamers
      € 395.000,- k.k.
      Bekijk
      Nieuw icon
      Nieuw
      Amsterdam
      Zuid

      Legmeerstraat 34 1

      Bovenwoning
      59 m²
      2 kamers
      € 600.000,- k.k.
      Bekijk
      Duurzaam icon
      Duurzaam
      Amsterdam
      West

      Nova Zemblastraat 15 D

      Bovenwoning
      71 m²
      71 m²
      3 kamers
      € 425.000,- k.k.
      Bekijk
      Amsterdam
      West

      Houtrijkstraat 152

      Bovenwoning
      79 m²
      3 kamers
      € 530.000,- k.k.
      Bekijk
      Amsterdam
      Oost

      Riouwstraat 99 D

      Bovenwoning
      50 m²
      2 kamers
      € 395.000,- k.k.
      Bekijk
      Duurzaam icon
      Duurzaam
      Amsterdam
      Oost

      Fritz Dietrich Kahlenbergstraat 57

      Bovenwoning
      92 m²
      3 kamers
      € 595.000,- k.k.
      Bekijk