Haarlem

Ter Kleefkwartier

Hogerwoerdstraat 40

E
€500.000,- k.k.
94 m² wonen
4 kamers
In Woonwijk
1927
Tim Boekee – K-RMT – Mooijekind Vleut Makelaars in Haarlem
Tim Boekee
NVM Makelaar - Register Taxateur
023 - 542 02 44

Beschrijving

Ruime bovenwoning met eigen garage in de geliefde Bomenbuurt. De woning beschikt over een royale woonkamer, eetkeuken, drie slaapkamers, een badkamer en een ruime garage. Wat een fijne omgeving! Deze kindvriendelijke buurt biedt veel kinderdagverblijven en basisscholen in de directe omgeving, evenals de veelzijdige Kweektuin: een ecologisch stadspark met Kweekcafé, yogacentrum, speeltuin, kinderboerderij en een maandelijkse biologische markt. De winkels aan de Cronjéstraat liggen op loopafstand, net als het NS-station. Het strand en de duinen liggen op fietsafstand, en uitvalswegen richting Amsterdam, Schiphol en Den Haag zijn eenvoudig bereikbaar.

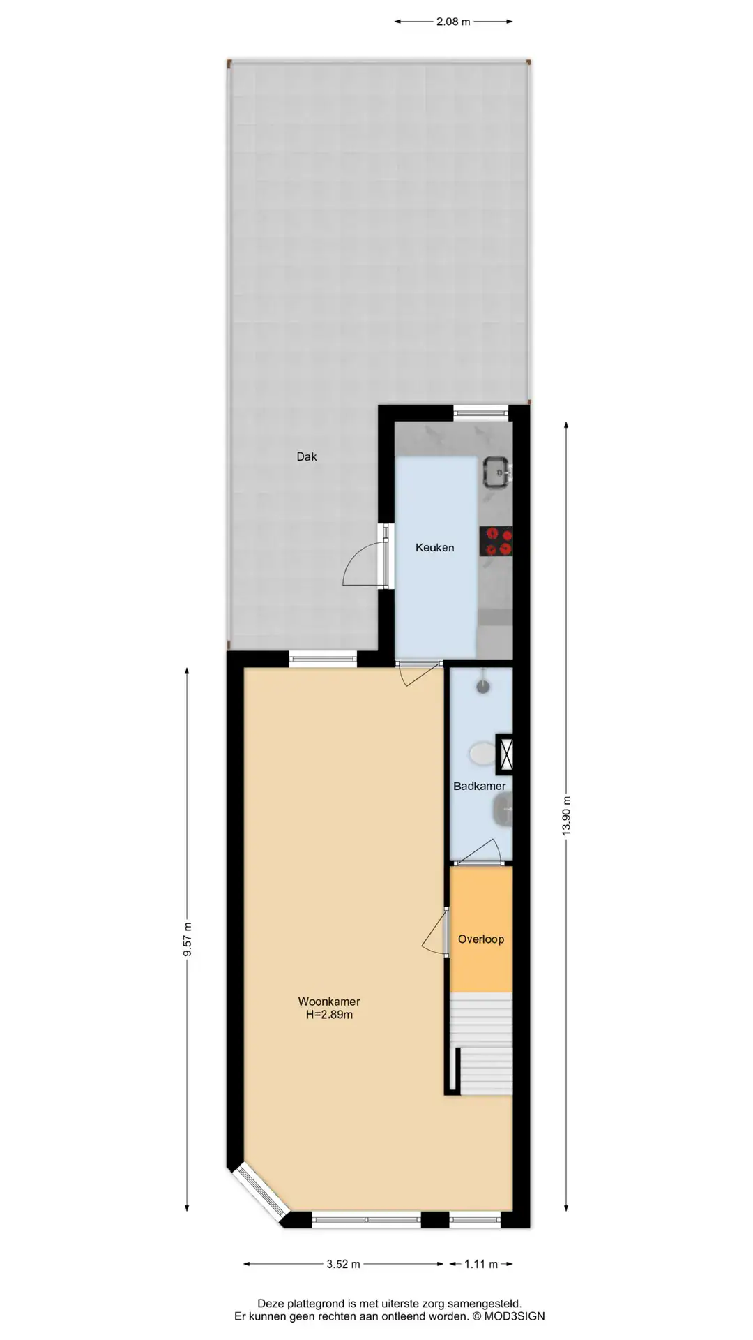
Deze fijne bovenwoning heeft veel potentie en (ver)dient het om opgeknapt te worden. Je komt binnen via de eigen entree op de begane grond. Via de trap bereik je de eerste verdieping met een ruime woonkamer voorzien van grote raampartijen. Wat een licht! Aan de achterzijde is een eenvoudige keuken met toegang tot een plat dak. Tevens is er op deze verdieping een badkamer met douche en toilet. Via de (weggewerkte) trap in de woonkamer kom je op de tweede verdieping. Hier is een ruime overloop met vaste kast met opstelling voor de wasmachine, een dakkoepel en de opstelling van de c.v.-ketel. Er zijn drie ruime slaapkamers waarvan twee zijn voorzien van een dakkapel. Aan de zijkant van de woning bevindt zich een ruime garage. Fijn om je auto te parkeren maar ook heerlijk als klusruimte en zelfs beide is mogelijk. Ruimte genoeg!

De woning bevindt zich in de groene Bomenbuurt, vlakbij de Haarlemmer Kweektuin. Dit ecologisch stadspark vormt de kern van de buurt, waar natuur, horeca en recreatie samenkomen. Hier kunnen kinderen heerlijk buiten spelen, ontmoeten bewoners elkaar voor een kop koffie en in de zomer worden er maandelijks biologische markten gehouden. Ook andere groene gebieden zoals het Zaanenpark, stadspark De Bolwerken en het Spaarne liggen in de directe omgeving. Bovendien zijn de Mooie Nel, de Kennemerduinen en Bloemendaal aan Zee binnen korte tijd bereikbaar. Voor boodschappen kun je terecht in winkelcentrum Spaarneboog of in de Cronjéstraat.

Goed te weten
* Bouwjaar 1927
* Woonoppervlakte 94 m2
* Energielabel E
* De woning heeft een eigen garage van 29 m2
* De Grote Markt: 8 minuten fietsen
* Station Haarlem: 8 minuten fietsen
* Oplevering in overleg

Begane grond
Entree. Hal met meterkast. Trap naar de verdieping.

Eerste verdieping
Overloop voorzien van een garderobe. Badkamer met douche, toilet en vaste wastafel. Ruime woonkamer met erker aan de voorzijde. Eenvoudige dichte keuken voorzien van oven, inductiekookplaat, afzuigkap en deur naar plat dak.

Tweede verdieping
Ruime overloop met dakkoepel en kast met opstelling voor de wasmachine. Drie ruime slaapkamers, elk voorzien van een eigen dakkapel.

Garage
Ruime garage.

Plattegronden

Kenmerken

Algemeen
Prijs €500.000,- k.k.
Aanvaarding In Overleg
Status Beschikbaar
Energie
Energie label E
Isolatie Dubbel glas
Verwarming Cv ketel
Warm water Cv ketel
CV-ketel Remeha (Eigendom)
Oppervlakte en inhoud
Wonen 94 m²
Overige inpandige ruimte 29 m²
Inhoud 333 m²
Specificaties
Soort appartement Bovenwoning
Soort bouw Bestaande Bouw
Bouwjaar 1927
Soort dak Mansarde Dak
Ligging In Woonwijk
Type tuin Geen Tuin
Garage Ja
Externe berging Nee
Kadastrale gegevens
Plaats & postcode Haarlem 2023 VD
Eigendomssituatie Volle Eigendom
Indeling
Aantal kamers 4 kamers (3 slaapkamers)
Aantal badkamers 1 badkamers
Badkamervoorzieningen Toilet, Douche, Wastafel
Aantal woonlagen 2 Verdiepingen
Voorzieningen Tv kabel Verdiepingen
Toon alle kenmerken Toon minder kenmerken
hypotheekshop-logo Wat worden mijn maandlasten? Klik hier om een afspraak te maken met een onafhankelijke hypotheekadviseur
Buurt & ligging
Ter Kleefkwartier
Alle buurtinfo
Aantal inwoners 13495
Aantal woningen 5552
Gem. WOZ-waarde €649429
Voorzieningen in de buurt
      Samenstelling huishoudens

      single

      zonder kinderen

      met kinderen

      Leeftijdsopbouw

      0 - 14 jaar

      15 - 24 jaar

      25 - 44 jaar

      45 - 64 jaar

      65+ jaar

      Verdeling type woning

      tussenwoning

      hoekwoning

      twee-onder-een-kap

      vrijstaand

      appartementen

      Vergelijkbaar in de buurt

      Zelfde prijscategorie Zelfde type woning
      Duurzaam icon
      Duurzaam
      Haarlem
      Parkwijk

      Alexander Polaplein 11

      Eengezinswoning
      118 m²
      135 m²
      5 kamers
      € 550.000,- k.k.
      Bekijk
      Haarlem
      Amsterdamsewijk

      Romolenstraat 6 RD

      Bovenwoning
      84 m²
      6 kamers
      € 500.000,- k.k.
      Bekijk
      Duurzaam icon
      Duurzaam
      Haarlem
      Oude Stad

      Justine de Gouwerhof 50

      Maisonnette
      82 m²
      4 kamers
      € 500.000,- k.k.
      Bekijk
      Open huis icon
      Open huis
      Haarlem
      Oude Stad

      Nassauplein 61

      Galerijflat
      71 m²
      2 kamers
      € 550.000,- k.k.
      Bekijk
      Duurzaam icon
      Duurzaam
      Haarlem
      Europawijk

      Engelandlaan 123 H

      Portiekflat
      79 m²
      3 kamers
      € 465.000,- k.k.
      Bekijk
      Haarlem
      Haarlemmerhoutkwartier

      Prins Mauritslaan 2 0064

      Portiekflat
      103 m²
      2 kamers
      € 450.000,- k.k.
      Bekijk
      Duurzaam icon
      Duurzaam
      Haarlem
      Oude Stad

      Nieuwe Gracht 72 0034

      Bovenwoning
      20 m²
      1 kamers
      € 185.000,- k.k.
      Bekijk
      Haarlem
      Amsterdamsewijk

      Herensingel 71 II

      Bovenwoning
      57 m²
      4 kamers
      € 435.000,- k.k.
      Bekijk
      Haarlem
      Amsterdamsewijk

      Romolenstraat 6 RD

      Bovenwoning
      84 m²
      6 kamers
      € 500.000,- k.k.
      Bekijk
      Haarlem
      Oude Stad

      Raamsteeg 11 RD

      Bovenwoning
      88 m²
      5 kamers
      € 585.000,- k.k.
      Bekijk
      Haarlem
      Oude Stad

      Nassaulaan 4 RD

      Bovenwoning
      78 m²
      5 kamers
      € 400.000,- k.k.
      Bekijk
      Duurzaam icon
      Duurzaam
      Haarlem
      Ter Kleefkwartier

      Schotersingel 117 A 2

      Bovenwoning
      90 m²
      4 kamers
      € 875.000,- k.k.
      Bekijk
      Haarlem
      Oude Stad

      Koningstraat 50 B

      Bovenwoning
      78 m²
      3 kamers
      € 425.000,- k.k.
      Bekijk