Haarlem

Haarlemmerhoutkwartier

Iordensstraat 43 A RD

D
€475.000,- k.k.
128 m² wonen
4 kamers
1906
Jack Tromp - K-RMT - Mooijekind Vleut Makelaars in Haarlem
Jack Tromp
NVM Makelaar
023 - 542 02 44
Jack Tromp - K-RMT - Mooijekind Vleut Makelaars in Haarlem

Beschrijving

BELEGGINGSOBJECT

Verhuurde bovenwoning op mooie locatie in de Koninginnebuurt! Verdeeld over twee verdiepingen van een statig pand. Vol historie en met ieder een eigen woonkamer, badkamer, slaapkamer en keuken. Op loopafstand van stadsbos de Haarlemmerhout en het groene Frederikspark, en op enkele minuten fietsen van het bruisende centrum van Haarlem.

Iordensstraat 43A vormde vroeger samen met Iordensstraat 43 een groot huis behorende bij de winkel op de begane grond van nummer 43. De tussendeur tussen deze woningen bestaat niet meer, maar is natuurlijk terug te brengen. Op die manier kan een groot familiehuis gerealiseerd, of eigenlijk teruggebracht, worden. Voor grote gezinnen, bewoning met au pair of om te gebruiken als gastenverblijf voor bijvoorbeeld familie uit het buitenland. Iordensstraat 43 is eveneens te koop.

Op beide verdiepingen zijn veel historische details terug te zien, te weten: hoge plafonds met ornamenten, de originele schouwen, paneeldeuren en glas-in-lood. Het appartement op de tweede verdieping is later gecreëerd, de oude elementen van de voormalige zolder zijn terug te vinden in onder andere de zichtbare balklaag en de gevelankers.

Deze karakteristieke bovenwoning uit 1906 ligt in de populaire Koninginnebuurt; centraal en rustig met de prachtige met alle voorzieningen binnen handbereik. In de buurt zijn meerdere goede basis- en middelbare scholen en ook sportclubs te vinden. De woning ligt op loopafstand van de gezellige Vijfhoek en de binnenstad van Haarlem met een breed aanbod aan winkels, restaurants, uitgaansgelegenheden en musea. Station Haarlem en NS station Heemstede/Aerdenhout zijn met de fiets in 8 minuten bereikbaar en met de auto zijn Amsterdam, Schiphol, Den Haag en Alkmaar snel bereikbaar.

Goed om te weten
* Beleggingsobject
* Verhuurd voor onbepaalde tijd
* Bouwjaar 1906
* Glas-in-loodramen, hoge plafonds en paneeldeuren nog gedeeltelijk aanwezig
* Beschermd stadsgezicht
* VvE is slapend. Wel ingeschreven in de KvK en er is een gezamenlijke opstalverzekering
* Parkeren middels parkeervergunning
* Niet-bewonersclausule van toepassing
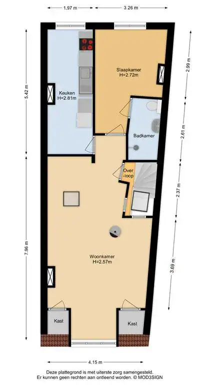
* Voor maten en indeling; zie kleurenplattegrond
* Oplevering in overleg

Begane grond
Entree, lange gang met granito vloer, meterkast en trapopgang

Eerste verdieping
Gedeelde overloop. Badkamer met douche en toilet. Woonkamer aan de voorzijde met hardstenen schouw, inbouwkasten en hoge ramen met glas-in-lood. Slaapkamer aan de achterzijde met hardstenen schouw, openslaande deuren har het balkon en een kastenkamer ensuite. Keuken met originele servieskast, RVS blad met verzonken spoelbak, cv-opstelling en aansluitingen voor vaatwasser en wasmachine.

Tweede verdieping
Overloop met toegang tot het appartement. Woonkamer met vaste kasten en gashaard. Badkamer met toilet, wastafel en douche. Slaapkamer aan de achterzijde. Keuken eveneens aan de achterzijde, lange keuken met veel kastruimte, 4-pits gasfornuis, afzuigkap, 1,5 RVS spoelbak, vaatwasser en wasmachine- en drogeraansluiting.

Plattegronden

Kenmerken

Algemeen
Prijs €475.000,- k.k.
Aanvaarding In Overleg
Status Beschikbaar
Energie
Energie label D
Verwarming Cv ketel
Warm water Cv ketel
CV-ketel Remeha Tzerra (Eigendom)
Oppervlakte en inhoud
Overige inpandige ruimte 3 m²
Gebouwgebonden buitenruimte 3 m²
Perceel 128 m²
Inhoud 454 m²
Specificaties
Soort bouw Bestaande Bouw
Bouwjaar 1906
Type tuin Geen Tuin
Garage Nee
Externe berging Nee
Kadastrale gegevens
Plaats & postcode Haarlem 2012 HA
Perceel 128 m²
Eigendomssituatie Volle Eigendom
Indeling
Aantal kamers 4 kamers (2 slaapkamers)
Aantal badkamers 2 badkamers
Badkamervoorzieningen Toilet, Douche, Wastafel
Aantal woonlagen 2 Verdiepingen
Voorzieningen Mechanische ventilatie Verdiepingen
Toon alle kenmerken Toon minder kenmerken
hypotheekshop-logo Wat worden mijn maandlasten? Klik hier om een afspraak te maken met een onafhankelijke hypotheekadviseur
Buurt & ligging
Haarlemmerhoutkwartier
Alle buurtinfo
Aantal inwoners 13050
Aantal woningen 6290
Gem. WOZ-waarde €734571
Voorzieningen in de buurt
      Samenstelling huishoudens

      single

      zonder kinderen

      met kinderen

      Leeftijdsopbouw

      0 - 14 jaar

      15 - 24 jaar

      25 - 44 jaar

      45 - 64 jaar

      65+ jaar

      Verdeling type woning

      tussenwoning

      hoekwoning

      twee-onder-een-kap

      vrijstaand

      appartementen

      Vergelijkbaar in de buurt

      Zelfde prijscategorie Zelfde type woning
      Duurzaam icon
      Duurzaam
      Haarlem
      Te Zaanenkwartier

      Top Naefflaan 9

      Eengezinswoning
      77 m²
      89 m²
      5 kamers
      € 475.000,- k.k.
      Bekijk
      Haarlem
      Transvaalwijk

      Schotersingel 31 ZW

      Benedenwoning
      81 m²
      3 kamers
      € 440.000,- k.k.
      Bekijk
      Duurzaam icon
      Duurzaam
      Haarlem
      Oude Stad

      Ridderstraat 4

      Benedenwoning
      107 m²
      4 kamers
      € 475.000,- k.k.
      Bekijk
      Haarlem
      Parkwijk

      Mariëttahof 79

      Galerijflat
      79 m²
      5 kamers
      € 440.000,- k.k.
      Bekijk
      Pre-owned icon
      Pre-owned
      Haarlem
      Europawijk

      Engelandlaan 123 H

      Portiekflat
      79 m²
      3 kamers
      € 465.000,- k.k.
      Bekijk
      Haarlem
      Haarlemmerhoutkwartier

      Prins Mauritslaan 2 0064

      Portiekflat
      103 m²
      2 kamers
      € 485.000,- k.k.
      Bekijk
      Duurzaam icon
      Duurzaam
      Haarlem
      Transvaalwijk

      Schoterweg 35 D

      Bovenwoning
      51 m²
      3 kamers
      € 375.000,- k.k.
      Bekijk
      Haarlem
      Oude Stad

      Nassaulaan 4 RD

      Bovenwoning
      78 m²
      5 kamers
      € 400.000,- k.k.
      Bekijk
      Haarlem
      Transvaalwijk

      Pieter Maritzstraat 16 RD

      Bovenwoning
      60 m²
      3 kamers
      € 350.000,- k.k.
      Bekijk
      Duurzaam icon
      Duurzaam
      Haarlem
      Ter Kleefkwartier

      Schotersingel 117 A 2

      Bovenwoning
      90 m²
      4 kamers
      € 875.000,- k.k.
      Bekijk
      Haarlem
      Oude Stad

      Koningstraat 50 B

      Bovenwoning
      78 m²
      3 kamers
      € 425.000,- k.k.
      Bekijk