Haarlem

Slachthuiswijk

Slachthuisstraat 39 ZW

D
€350.000,- k.k.
59 m² wonen
2 kamers
In Woonwijk
1929
Maarten Bos – RM RT – Mooijekind Vleut Makelaars in Haarlem
Maarten Bos
Partner - Register Makelaar
023 - 542 02 44
Maarten Bos – RM RT – Mooijekind Vleut Makelaars in Haarlem

Beschrijving

Een charmante benedenwoning aan de rand van het centrum. Alles op één woonlaag, met een fijne indeling en een heerlijke, zonnige tuin op het noorden. In de levendige Slachthuisbuurt, op korte afstand van het centrum en met alle voorzieningen binnen handbereik, komt stads wonen en ontspannen hier perfect samen.

De entree geeft toegang tot een hal met garderobe en bergkast. Vanuit hier leidt de doorgang naar de ruime woonkamer met een prettige lichtinval met hoge plafonds wat zorgt voor een ruimtelijk gevoel. De woonkamer biedt voldoende plek voor zowel een gezellige zithoek als een eethoek. Aangrenzend ligt de slaapkamer, rustig gesitueerd aan de achterzijde van de woning. De keuken aan de tuinzijde is modern en sfeervol ingericht, voorzien van diverse inbouwapparatuur en voldoende werkruimte, een fijne plek om te koken met uitzicht op het groen. Vanuit de keuken is er toegang tot de badkamer, die eigentijds is afgewerkt met stijlvolle moderne keuzes. De achtertuin vormt een groen verlengstuk van de woonruimte. Een échte heerlijke tuin waar in alle rust van het buitenleven kan worden genoten.

De locatie van dit appartement is ideaal: het bruisende stadshart met haar vele winkels, restaurants en kroegjes “om de hoek”, je wandelt er in een mum van tijd naar toe. Ook ben je met de auto binnen enkele minuten op de belangrijkste hoofdwegen in de richting van Alkmaar, Amsterdam, Schiphol en Den haag. De NS-stations Haarlem CS en Heemstede-Aerdenhout bevinden zich op fietsafstand, evenals het strand en de duinen. Vlakbij ligt het Burgermeester Reinaldapark, een levendig stadspark waar je lekker kunt sporten en luieren. Hardlopen, wandelen, hangen aan het klimrek, tennissen of voetballen, het kan allemaal. Of fiets naar het rustgevende stadspark de Haarlemmerhout en droom lekker weg op een bankje onder de bomen of op een kleed in de zon.

Goed om te weten
* Bouwjaar 1929
* Energielabel D
* Woonoppervlakte 59m2
* Tuin op het noorden
* Fundering op houten palen
* In 2025 zijn de buitenkozijnen geschilderd
* Gelijkvloers wonen!
* De VvE is ingeschreven bij de KvK, maar is organisatorisch nog in oprichting
* Vrij parkeren in de straat
* Strand Bloemendaal: 29 minuten fietsen
* Duinen: 18 minuten fietsen
* NS station Heemstede-Aerdenhout: 16 minuten fietsen
* NS station Haarlem CS: 7 minuten fietsen
* Grote markt Haarlem: 6 minuten fietsen
* Oplevering in overleg

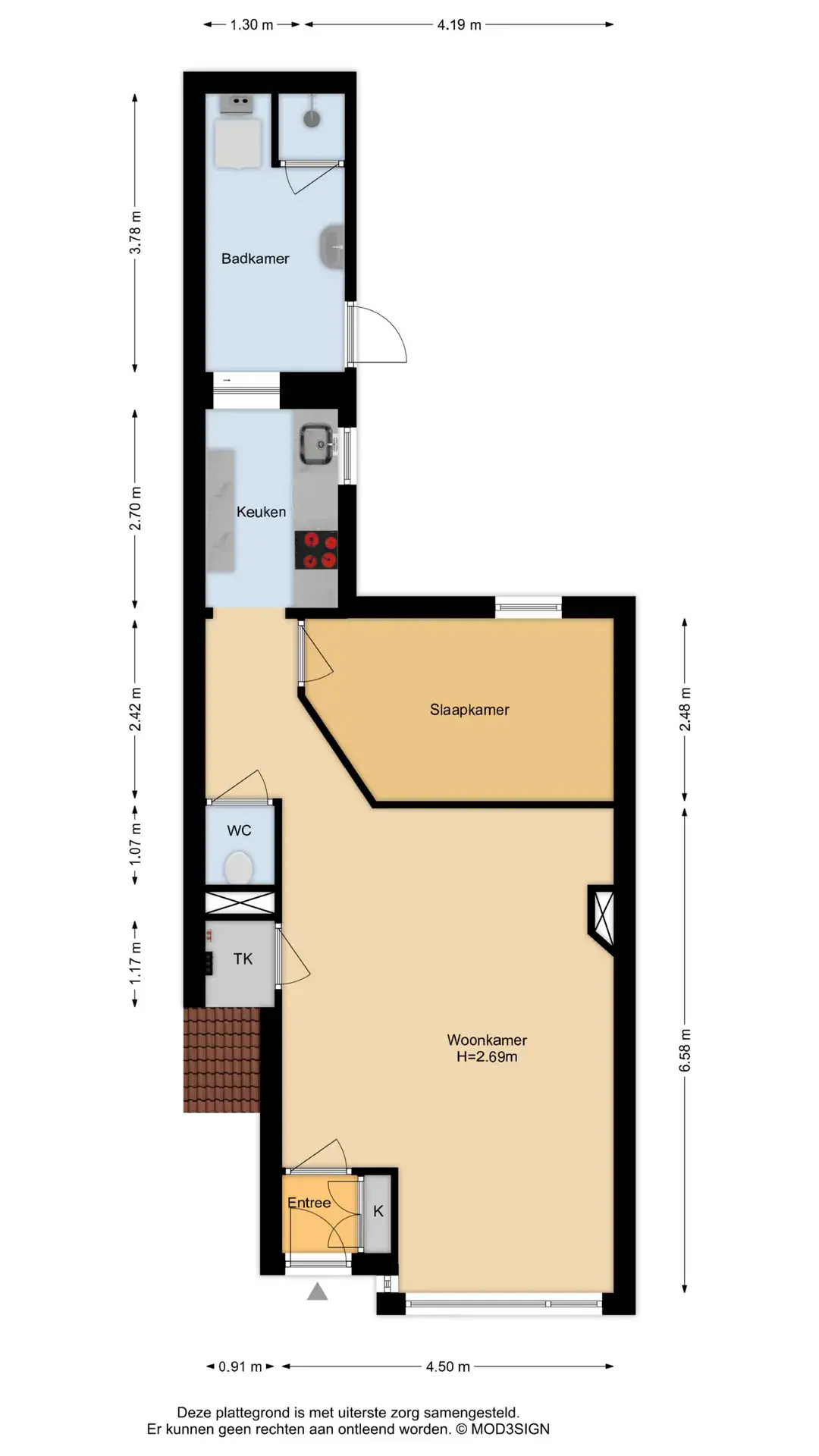
Begane grond
Entree. Woonkamer aan de voorzijde van de woning. Berging. Separaat toilet met fontein. Slaapkamer aan de achterzijde van de woning, aangrenzend aan de tuin. Keuken voorzien van een 4 pits gasfornuis, fornuis, oven, vaatwasser en een koelkast. Aan de achterzijde vand e woning is de badkamer te vinden, voorzien van een douche, wastafel en aansluiting voor wasapparatuur. Aangrenzend is de grote tuin op de noorden te vinden, met een achterom.

Plattegronden

Kenmerken

Algemeen
Prijs €350.000,- k.k.
Aanvaarding In Overleg
Status Beschikbaar
Energie
Energie label D
Isolatie Gedeeltelijk dubbel glas
Verwarming Cv ketel
Warm water Cv ketel
CV-ketel (Eigendom)
Oppervlakte en inhoud
Perceel 59 m²
Inhoud 193 m²
Hoofdtuin 24 m²
Specificaties
Soort bouw Bestaande Bouw
Bouwjaar 1929
Ligging In Woonwijk
Type tuin Achtertuin
Garage Nee
Externe berging Nee
Kadastrale gegevens
Plaats & postcode Haarlem 2033 HC
Perceel 59 m²
Eigendomssituatie Volle Eigendom
Indeling
Aantal kamers 2 kamers (1 slaapkamers)
Aantal badkamers 1 badkamers
Badkamervoorzieningen Douche, Wastafel, Wastafelmeubel, Wasmachineaansluiting
Aantal woonlagen 1 Verdiepingen
Voorzieningen Natuurlijke ventilatie Verdiepingen
Toon alle kenmerken Toon minder kenmerken
hypotheekshop-logo Wat worden mijn maandlasten? Klik hier om een afspraak te maken met een onafhankelijke hypotheekadviseur
Buurt & ligging
Slachthuiswijk
Alle buurtinfo
Aantal inwoners 3480
Aantal woningen 1806
Gem. WOZ-waarde €420500
Voorzieningen in de buurt
      Samenstelling huishoudens

      single

      zonder kinderen

      met kinderen

      Leeftijdsopbouw

      0 - 14 jaar

      15 - 24 jaar

      25 - 44 jaar

      45 - 64 jaar

      65+ jaar

      Verdeling type woning

      tussenwoning

      hoekwoning

      twee-onder-een-kap

      vrijstaand

      appartementen

      Vergelijkbaar in de buurt

      Zelfde prijscategorie Zelfde type woning
      Duurzaam icon
      Duurzaam
      Haarlem
      Transvaalwijk

      Schoterweg 35 D

      Bovenwoning
      51 m²
      3 kamers
      € 375.000,- k.k.
      Bekijk
      Haarlem
      Transvaalwijk

      Pieter Maritzstraat 16 RD

      Bovenwoning
      60 m²
      3 kamers
      € 350.000,- k.k.
      Bekijk
      Haarlem
      Haarlemmerhoutkwartier

      Zandvoorter Allee 76

      Portiekflat
      93 m²
      3 kamers
      € 380.000,- k.k.
      Bekijk
      Haarlem
      Europawijk

      Engelandlaan 1158

      Portiekflat
      62 m²
      2 kamers
      € 340.000,- k.k.
      Bekijk
      Duurzaam icon
      Duurzaam
      Haarlem
      Oude Stad

      Korte Lakenstraat 4 ZW

      Benedenwoning
      56 m²
      3 kamers
      € 325.000,- k.k.
      Bekijk
      Haarlem
      Amsterdamsewijk

      Van Zeggelenstraat 144

      Benedenwoning
      77 m²
      3 kamers
      € 525.000,- k.k.
      Bekijk
      Haarlem
      Oude Stad

      Nieuwe Gracht 72 0003

      Benedenwoning
      48 m²
      1 kamers
      € 300.000,- k.k.
      Bekijk
      Haarlem
      Transvaalwijk

      Schotersingel 31 ZW

      Benedenwoning
      81 m²
      3 kamers
      € 440.000,- k.k.
      Bekijk
      Duurzaam icon
      Duurzaam
      Haarlem
      Oude Stad

      Ridderstraat 4

      Benedenwoning
      107 m²
      4 kamers
      € 475.000,- k.k.
      Bekijk
      Duurzaam icon
      Duurzaam
      Haarlem
      Oude Stad

      Korte Lakenstraat 4 ZW

      Benedenwoning
      56 m²
      3 kamers
      € 325.000,- k.k.
      Bekijk