Haarlem

Haarlemmerhoutkwartier

Van Eedenstraat 1

C
€1.650.000,- k.k.
257 m² wonen
250 m² perceel
9 kamers
In Centrum
1910
Jack Tromp - K-RMT - Mooijekind Vleut Makelaars in Haarlem
Jack Tromp
NVM Makelaar
023 - 542 02 44

Beschrijving

Wauw! Wat is dit een schitterend huis! Een fantastisch gezinshuis van maar liefst 257m2. Karakteristiek, tot in de puntjes verzorgd en in 2025 gerenoveerd, met behoud van originele stijlkenmerken en uitstraling. vijf ruime slaapkamers en twee badkamers. Een zonnige tuin op het oosten. De woning ligt aan de rand van het centrum in de statige en geliefde Koninginnebuurt. Een riante woning en op loopafstand van de stad!

Dit riante en luxueuze herenhuis (1910) is door de huidige bewoners volledig gerenoveerd, waarbij werkelijk alles, met gebruik van hoogwaardige materialen, tot in de details is aangepakt. Zowel de begane grond als de verdiepingen hebben hoge plafonds en stoere houtlook vloeren. De stadsvilla is altijd zeer liefdevol bewoond met respect voor de historie en dat is goed merkbaar, direct bij binnenkomst voel je; dit is een thuis! De huidige bewoners hebben gekozen voor een moderne, strakke inrichting, die bijzonder fraai combineert met de karakteristieke bouwstijl en aanwezige originele details. Achter de voordeur is de woning heerlijk rustig, daarnaast merk je in tuin niet dat je aan de rand van het centrum woont.

De entree is groots! Er is een ruim voorportaal met daarachter een grote, brede hal met statig trappenhuis. De leefkeuken is ruim opgezet waarbij de authentieke details en de moderne keuken naadloos in elkaar overlopen. De perfecte plek om te borrelen en dineren met vrienden of een (groot) gezin. De woonkamer en suite straalt rust en karakter uit met de
klassieke maar stoere suite deuren, hoge plafonds en twee sfeervolle haarden in de voor en achterkamer. Daarnaast is er aan de voorzijde nog een werkkamer. Via de openslaande deuren in de woonkamer betreed je de circa 12 meter brede achtertuin op het oosten en is mede vanwege de vrije ligging aan de zuidkant de gehele dag zonnig. Verdeeld over de twee verdiepingen zijn er 5 ruime slaapkamers en 2 badkamers. Perfect voor een groot gezin!

De ligging is super! In de geliefde Koninginnebuurt aan de rand van het bruisende centrum. Vele winkels, restaurants, kroegen en terrassen, fraaie musea en stadsparken op loopafstand. Kinderopvang en scholen zijn om de hoek, net als het grootste stadsbos van Nederland, de Haarlemmerhout. Wegen richting Amsterdam, Schiphol en Den Haag zijn eenvoudig bereikbaar en met de fiets ben je binnen no time op het NS-station. Bovendien zijn de stranden van Bloemendaal en Zandvoort per fiets in ca. 20 minuten bereikbaar.

Goed om te weten
* Bouwjaar 1910
* Energielabel C
* Alarm aanwezig
* Prachtige glas-in-lood ramen door de gehele woning aanwezig
* Woonkamer voorzien van visgraat PVC-vloer met vloerverwarming
* Oase van rust aan de rand van de binnenstad
* Gevels gereinigd in 2009
* Dak vernieuwd in 2024
* Buiten schilderwerk februari 2025
* 12 zonnepanelen aanwezig
* Parkeervergunning mogelijk
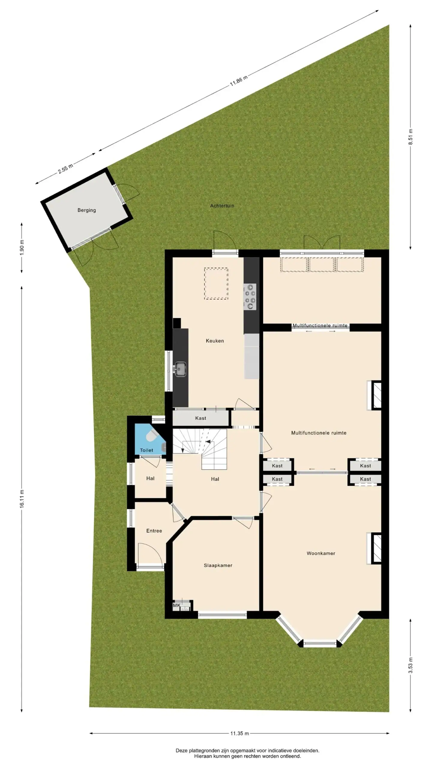
* Voor maten en indeling, zie kleurenplattegrond
* Oplevering in overleg

Kelder
De kelder is op sta hoogte en droog. Daarnaast bevindt zich de omvormer van de vloerverwarming.

Begane grond
Voorportaal met vestibule, glas-in-lood ramen, klein daklicht en marmeren tegels. Via glazen deur met roedeverdeling ga je naar de hal. Grote hal voorzien van garderobe en separaat toilet met fontein. Vanuit de hal toegang naar meerdere vertrekken. Woonkamer voorzien van ensuite deuren, twee haarden en een serre. Openslaande deuren naar de tuin. De brede tuin ligt op het oosten en is voorzien van houten schuur met achterom en zonnepanelen. Keuken voorzien van 5-pits gasfornuis Atag, brede oven van Atag, afzuigkap Bosch, vaatwasser Bosch, Quooker, grote koelkast en grote vriezer van Bosch, laminaat tegels en tevens een deur naar de tuin. Werkkamer aan de voorzijde voorzien massief houten vloer, rookkanaal, roede verdeling en meterkast.

Overloop
Overloop tussen verdieping voorzien van authentieke fonteintje, glas-in-lood ramen met een waskamer met wasmachine droger aansluiting.

Eerste verdieping
Slaapkamer voorzijde voorzien van schouw met rookkaneel. Tweede slaapkamer voorzijde met openslaande deuren naar balkon op het noorden, inbouwkast, marmeren schouw en roede verdeling. Via o.a. de inloopkast doorgang naar derde slaapkamer. Derde slaapkamer (hoofdslaapkamer) voorzien van inbouwkast, openslaande deuren naar balkon op het oosten. Badkamer ensuite met gigantische douche voorzien van stort douche en handdouche, grote nis, toilet, bad en dubbele wastafel.

Tweede verdieping
Overloop met technische ruimte voorzien van omvormer, CV-ketel, laminaat en daklicht. Slaapkamer voorzijde voorzien van Velux dakraam, houten balken, luiken aan binnenzijde, twee inbouwkasten en radiator. Via deze slaapkamer betreed je de vliering. Slaapkamer achterzijde voorzien van houten balken, Velux dakraam en inbouwkasten. Tweede badkamer voorzien van inloop douche, toilet en wastafelmeubel.

Vliering

Plattegronden

Kenmerken

Algemeen
Prijs €1.650.000,- k.k.
Aanvaarding In Overleg
Status Beschikbaar
Energie
Energie label C
Isolatie Dakisolatie, Muurisolatie, Vloerisolatie, Grotendeels dubbelglas, Hr glas
Verwarming Cv ketel
Warm water Cv ketel
CV-ketel Remeha (Eigendom)
Oppervlakte en inhoud
Wonen 257 m²
Overige inpandige ruimte 28 m²
Gebouwgebonden buitenruimte 10 m²
Perceel 250 m²
Inhoud 1069 m²
Hoofdtuin 101 m²
Specificaties
Soort woonhuis Herenhuis
Soort bouw Bestaande Bouw
Bouwjaar 1910
Soort dak Schilddak
Ligging In Centrum, In Woonwijk, Vrij Uitzicht
Type tuin Achtertuin
Garage Nee
Externe berging Ja
Kadastrale gegevens
Plaats & postcode Haarlem 2012 EL
Perceel 250 m²
Eigendomssituatie Volle Eigendom
Indeling
Aantal kamers 9 kamers (5 slaapkamers)
Aantal badkamers 2 badkamers
Badkamervoorzieningen Toilet, Wastafelmeubel, Inloopdouche, Ligbad, Douche
Voorzieningen Alarminstallatie, Dakraam Verdiepingen
Toon alle kenmerken Toon minder kenmerken
hypotheekshop-logo Wat worden mijn maandlasten? Klik hier om een afspraak te maken met een onafhankelijke hypotheekadviseur
Buurt & ligging
Haarlemmerhoutkwartier
Alle buurtinfo
Aantal inwoners 13050
Aantal woningen 6290
Gem. WOZ-waarde €734571
Voorzieningen in de buurt
      Samenstelling huishoudens

      single

      zonder kinderen

      met kinderen

      Leeftijdsopbouw

      0 - 14 jaar

      15 - 24 jaar

      25 - 44 jaar

      45 - 64 jaar

      65+ jaar

      Verdeling type woning

      tussenwoning

      hoekwoning

      twee-onder-een-kap

      vrijstaand

      appartementen

      Vergelijkbaar in de buurt

      Zelfde prijscategorie Zelfde type woning

      Er zijn geen vergelijkbare woningen gevonden in deze prijsklasse en buurt

      Haarlem
      Transvaalwijk

      Schotersingel 85

      Herenhuis
      236 m²
      230 m²
      10 kamers
      € 1.900.000,- k.k.
      Bekijk
      Haarlem
      Houtvaartkwartier

      Leidsevaart 234

      Herenhuis
      171 m²
      122 m²
      8 kamers
      € 850.000,- k.k.
      Bekijk
      Haarlem
      Haarlemmerhoutkwartier

      Zomerluststraat 20

      Herenhuis
      420 m²
      536 m²
      17 kamers
      € 2.000.000,- k.k.
      Bekijk
      Haarlem
      Haarlemmerhoutkwartier

      Stolbergstraat 6

      Herenhuis
      342 m²
      325 m²
      8 kamers
      € 2.950.000,- k.k.
      Bekijk
      Haarlem
      Haarlemmerhoutkwartier

      Eerste Emmastraat 10

      Herenhuis
      192 m²
      121 m²
      8 kamers
      € 1.299.000,- k.k.
      Bekijk