Haarlem

Parkwijk

Mariëttahof 79

C
€440.000,- k.k.
79 m² wonen
5 kamers
In Woonwijk
1994
Jack Tromp - K-RMT - Mooijekind Vleut Makelaars in Haarlem
Jack Tromp
NVM Makelaar
023 - 542 02 44
Jack Tromp - K-RMT - Mooijekind Vleut Makelaars in Haarlem

Beschrijving

Verassend ruim appartement! Met twee slaapkamers, een riante keuken en vrij uitzicht. Er is een berging op de begane grond en je parkeert op eigen (afgesloten) terrein. Gelegen in Haarlem Oost, om de hoek van de bruisende stad en met diverse winkels op loopafstand.

Dit appartement tref je op de vijfde verdieping van een net onderhouden appartementencomplex. De ruime en lichte woonkamer biedt voldoende ruimte voor een comfortabele zithoek en een plek om te dineren. De riante halfopen keuken is voorzien van diverse inbouwapparatuur en biedt bovendien de mogelijkheid om te koken met een prachtig uitzicht. Via de keuken kom je op het balkon op het westen, zodat je aan het einde van de middag heerlijk met een boek kunt genieten van de zonsondergang. De badkamer ziet er netjes uit en is voorzien van een fraai meubel met douche. Op de gang vind je een separaat toilet en een royale technische ruimte. Verder in de gang tref je twee slaapkamers, die zich aan de voorzijde van de woning bevinden.

Het appartement bevindt zich op een ideale plek in Haarlem Oost, in de buurt Parkwijk. Op korte loopafstand vind je de winkels op het Prinses Beatrixplein en dankzij de aanwezigheid van de N200, N205, A9 en het NS-station Haarlem Spaarnwoude heb je uitstekende verbindingen. Het stadscentrum van Haarlem is binnen 10 minuten fietsen bereikbaar en zowel de Veerplas als het Burgemeester Reinaldapark liggen in de buurt.

Goed om te weten
* Woonoppervlak 78m2
* Twee slaapkamers
* Balkon op het westen
* Vrij parkeren op afgesloten terrein
* Servicekosten €190,- per maand incl. voorschot water
* Eigen berging op de begane grond
* NS-station Haarlem-Spaarnwoude: 8 minuten fietsen
* Haarlem centrum (Grote Markt): 10 minuten fietsen
* Reinaldapark: 11 minuten lopen

Begane grond
Entree complex, brievenbus, berging, de lift of trap brengt je naar de…

Vierde verdieping
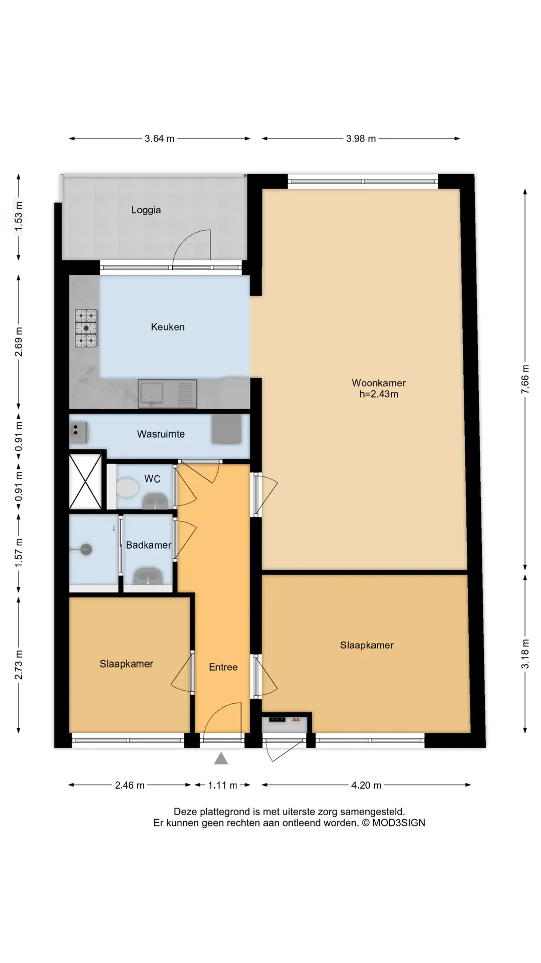
Entree woning, gang, hoofdslaapkamer, tweede slaapkamer. Badkamer met wasmeubel en douche. Separaat toilet met fontein. Technische ruimte met C.V. en wasmachine aansluiting. Woonkamer met eetgedeelte, zitgedeelte. Halfopen keuken voorzien van koel vries combinatie, gootsteen, vaatwasser, 5 pits gasfornuis en afzuigkap. Balkon op het westen.

Plattegronden

Kenmerken

Algemeen
Prijs €440.000,- k.k.
Aanvaarding In Overleg
Status Beschikbaar
Energie
Energie label C
Isolatie Volledig geisoleerd
Verwarming Cv ketel
Warm water Cv ketel
CV-ketel Bosch (Eigendom)
Oppervlakte en inhoud
Overige inpandige ruimte 10 m²
Gebouwgebonden buitenruimte 5 m²
Perceel 79 m²
Inhoud 239 m²
Specificaties
Soort bouw Bestaande Bouw
Bouwjaar 1994
Soort dak Samengesteld Dak
Ligging In Woonwijk, Vrij Uitzicht
Type tuin Geen Tuin
Garage Nee
Externe berging Nee
Kadastrale gegevens
Plaats & postcode Haarlem 2033 WT
Perceel 79 m²
Eigendomssituatie Volle Eigendom
Indeling
Aantal kamers 5 kamers (2 slaapkamers)
Aantal badkamers 1 badkamers
Badkamervoorzieningen Douche, Wastafelmeubel
Aantal woonlagen 1 Verdiepingen
Toon alle kenmerken Toon minder kenmerken
hypotheekshop-logo Wat worden mijn maandlasten? Klik hier om een afspraak te maken met een onafhankelijke hypotheekadviseur
Buurt & ligging
Aantal inwoners 3520
Aantal woningen 1647
Gem. WOZ-waarde €387000
Voorzieningen in de buurt
      Samenstelling huishoudens

      single

      zonder kinderen

      met kinderen

      Leeftijdsopbouw

      0 - 14 jaar

      15 - 24 jaar

      25 - 44 jaar

      45 - 64 jaar

      65+ jaar

      Verdeling type woning

      tussenwoning

      hoekwoning

      twee-onder-een-kap

      vrijstaand

      appartementen

      Vergelijkbaar in de buurt

      Zelfde prijscategorie Zelfde type woning
      Duurzaam icon
      Duurzaam
      Haarlem
      Parkwijk

      Diakenhuisweg 59

      Portiekflat
      77 m²
      3 kamers
      € 400.000,- k.k.
      Bekijk
      Haarlem
      Oude Stad

      De Haasstraat 8

      Eengezinswoning
      44 m²
      50 m²
      2 kamers
      € 425.000,- k.k.
      Bekijk
      Duurzaam icon
      Duurzaam
      Haarlem
      Te Zaanenkwartier

      Top Naefflaan 9

      Eengezinswoning
      77 m²
      89 m²
      5 kamers
      € 475.000,- k.k.
      Bekijk
      Haarlem
      Transvaalwijk

      Schotersingel 31 ZW

      Benedenwoning
      81 m²
      3 kamers
      € 440.000,- k.k.
      Bekijk
      Haarlem
      Oude Stad

      Nassaulaan 4 RD

      Bovenwoning
      78 m²
      5 kamers
      € 400.000,- k.k.
      Bekijk
      Duurzaam icon
      Duurzaam
      Haarlem
      Oude Stad

      Ridderstraat 4

      Benedenwoning
      107 m²
      4 kamers
      € 475.000,- k.k.
      Bekijk
      Haarlem
      Haarlemmerhoutkwartier

      Iordensstraat 43 A RD

      Bovenwoning
      128 m²
      4 kamers
      € 475.000,- k.k.
      Bekijk
      Duurzaam icon
      Duurzaam
      Haarlem
      Haarlemmerhoutkwartier

      Kamperlaan 120

      Galerijflat
      71 m²
      2 kamers
      € 425.000,- k.k.
      Bekijk
      Pre-owned icon
      Pre-owned
      Haarlem
      Europawijk

      Engelandlaan 123 H

      Portiekflat
      79 m²
      3 kamers
      € 465.000,- k.k.
      Bekijk
      Haarlem
      Oude Stad

      Koningstraat 50 B

      Bovenwoning
      78 m²
      3 kamers
      € 425.000,- k.k.
      Bekijk
      Duurzaam icon
      Duurzaam
      Haarlem
      Oude Stad

      Nassauplein 61

      Galerijflat
      71 m²
      2 kamers
      € 550.000,- k.k.
      Bekijk
      Duurzaam icon
      Duurzaam
      Haarlem
      Haarlemmerhoutkwartier

      Kamperlaan 120

      Galerijflat
      71 m²
      2 kamers
      € 425.000,- k.k.
      Bekijk
      Pre-owned icon
      Pre-owned
      Haarlem
      Boerhaavewijk

      Kadijklaan 42

      Galerijflat
      110 m²
      3 kamers
      € 750.000,- k.k.
      Bekijk
      Pre-owned icon
      Pre-owned
      Haarlem
      Boerhaavewijk

      Surinamepad 152

      Galerijflat
      131 m²
      2 kamers
      € 675.000,- k.k.
      Bekijk