Haarlem

Ter Kleefkwartier

Verspronckweg 177

B
€1.250.000,- k.k.
165 m² wonen
161 m² perceel
6 kamers
In Woonwijk
1926
Bas van Amerongen – Partner-Register Makelaar – Mooijekind Vleut Makelaars in Haarlem
Bas van Amerongen
Partner - Register Makelaar
023 - 542 02 44

Beschrijving

Riant en duurzaam familiehuis aan open vaarwater met energielabel B! Dit fantastische gezinshuis ligt in de gewilde Kleverparkbuurt, aan het rustige gedeelte van de Verspronckweg. Het huis combineert een optimale indeling met een fantastische ligging en een uitzonderlijk vrij, groen uitzicht. Dit is wonen in de stad maar toch in de rust. De woning van maar liefst 165 m2 beschikt over een ruime woonkamer met uitbouw, moderne open keuken, 5 slaapkamers, 2 badkamers én een voor- en achtertuin.
De woning is door de jaren heen met liefde gemoderniseerd en uitgebreid. De ligging is geweldig: In de gewilde Kleverparkbuurt. Groen, aan open vaarwater, breed opgezet, goed bereikbaar, scholen, winkels, sportfaciliteiten, het strand, recreatie en met het openbaar vervoer in de buurt.

Wat een grandeur! Midden in een charmante en statige straat van Haarlem ligt dit prachtige en verrassende jaren 30 familiehuis. Een woning met veel karakter en allure! Laat je betoveren door de prachtige details zoals de granito vloer, originele wandtegels, glas-in-lood, hoge plafonds, de uitbouw en de openslaande deuren naar de riante tuin! Via het voorportaal treed je de ruime hal binnen. De hal heeft twee leuke doorkijken naar de woonkamer. De woonkamer zelf is heerlijk ruim en voorzien van houtkachel, massieve houten vloer, moderne open keuken en uitbouw voorzien van lichtstraat. Via de openslaande deuren betreed je de onder architectuur aangelegde achtertuin. De tuin ligt op het westen en is een ware oase van groen. Meerdere zitjes en terrassen nodigen uit tot ontspannen, terwijl je aan de waterkant geniet van je eigen aanlegsteiger. Met een diepte van circa 14,5 meter is er volop ruimte om te genieten. Het terras direct aan de woonkamer is voorzien van een zonnescherm, en dankzij de buitenverlichting en het buitenkraantje is het hier tot in de late uurtjes comfortabel vertoeven. Uniek is de prachtig aangelegde achtertuin aan open vaarwater. Hier leg je je eigen sloep aan en vaar je zo de Haarlemse grachten op. Geniet van de lange avondzon aan het water of maak een spontaan tochtje vanuit je eigen tuin.
De eerste verdieping biedt ruimte aan drie slaapkamers en een badkamer. Op de tweede verdieping zijn er nog eens twee slaapkamers, een tweede badkamer en een waskamer. Door de uitbouw zijn de slaapkamers heerlijk ruim! Een heerlijk huis waar een heel gezin met veel ruimte kan samenleven.

De Kleverparkbuurt staat bij de bewoners bekend als “een dorpje in de stad”. Het is een rustige en zeer kindvriendelijke wijk. Aan de rand van deze gezellige buurt staat dit fijne familiehuis.
De locatie van deze eengezinswoning is ideaal: een koffiehuis, Speeltuin Burcht ter Cleeff, kinderopvang, scholen, winkels, supermarkten en sportfaciliteiten op loop- en fietsafstand. Het NS-station van Haarlem, het bruisende stadshart en het strand met de duinen zijn eveneens goed met de fiets te bereiken. Hoofdwegen naar Alkmaar, Amsterdam, Schiphol en Den Haag liggen om de hoek. Via de achtertuin bereik je eenvoudig het water van “de Delft” die in verbinding ligt met het open vaarwater van het Spaarne. Kortom, dit is een ideale gezinswoning op een fijne plek!

Goed om te weten:
* Energielabel B
* 9 zonnepanelen (2022)
* Vloer- en dakisolatie aanwezig
* Opbouw uit 2019
* Uitbouw begane grond uit 2016
* Schilderwerk voorzijde 2023
* Beide badkamers voorzien van vloerverwarming
* Beschermd stadsgezicht
* Parkeren middels parkeervergunning
* NS station Haarlem: 5 minuten fietsen
* Grote Markt Haarlem: 8 minuten fietsen
* ’t Wed Bloemendaal: 16 minuten fietsen
* Strand en duinen Bloemendaal: 23 minuten fietsen
* Oplevering in overleg

Ruime voortuin met genoeg plek voor meerdere (bak)fietsen.

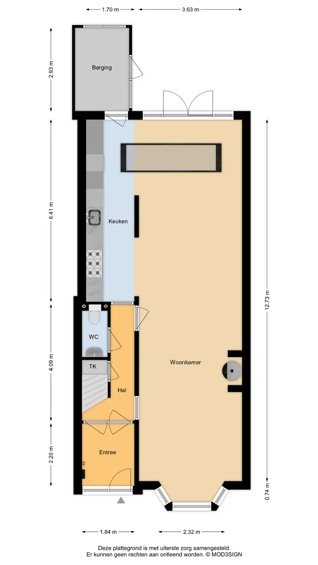
Begane grond
Entree, vestibule met granito vloer en originele wandtegels, gang met trapkast en moderne toilet met fonteintje, de meer dan royaal bemeten woonkamer is in 2016 uitgebouwd aan de achterzijde, hierbij is gebruik gemaakt van een grote pui met veel glas en tevens een lichtstraat (incl. zonwering) waardoor er, tezamen met de erker aan de voorzijde, veel daglicht naar binnen valt. De woonkamer beschikt nu over 2 ruime zithoeken en een fraaie opstelling voor de eettafel. De massieve eikenhouten vloer en de houtkachel maken de sfeer compleet. De moderne open keuken is voorzien van een Quooker, een 6-pits gasfornuis met oven en afzuigkap, vaatwasser, koelkast en vriezer. Er is veel praktische kastruimte aanwezig. Via de keuken bereik je de aangebouwde schuur die voorzien is van elektra.

Eerste verdieping
Overloop, de moderne badkamer op deze verdieping is voorzien van een ligbad met douche, wastafelmeubel en zwevend 2e toilet. Naast de badkamer vind je de ruime ouderslaapkamer met vaste kastenwand en openslaande deuren naar een op het westen gelegen balkon. Aan de voorzijde van de woning vind je nog een ruime slaapkamer en een werk/studeerkamer. In alle 3 de slaapkamers ligt een marmoleum vloer.

Tweede verdieping
Overloop met vaste bergkast en lichtkoepel, de 2e badkamer van het huis is voorzien van een inloopdouche, zwevend 3e toilet en een wastafelmeubel. Op deze tweede etage vind je nog eens 2 ruim bemeten slaapkamers die beide voorzien zijn van een airco-unit. Tot slot vind je hier de praktische was/bergruimte met opstelling van de CV-ketel (2015) en aansluiting voor de wasmachine en droger.

Plattegronden

Kenmerken

Algemeen
Prijs €1.250.000,- k.k.
Aanvaarding In Overleg
Status Beschikbaar
Energie
Energie label B
Isolatie Dakisolatie, Vloerisolatie, Dubbel glas, Hr glas
Verwarming Cv ketel
Warm water Cv ketel
CV-ketel Remeha Calenta (Eigendom)
Oppervlakte en inhoud
Wonen 165 m²
Overige inpandige ruimte 201 m²
Gebouwgebonden buitenruimte 6 m²
Perceel 161 m²
Inhoud 586 m²
Hoofdtuin 81 m²
Specificaties
Soort woonhuis Eengezinswoning
Soort bouw Bestaande Bouw
Bouwjaar 1926
Soort dak Samengesteld Dak
Ligging In Woonwijk, Vrij Uitzicht, Aan Vaarwater
Type tuin Achtertuin, Voortuin
Garage Nee
Externe berging Ja
Kadastrale gegevens
Plaats & postcode Haarlem 2023 BG
Perceel 161 m²
Eigendomssituatie Volle Eigendom
Indeling
Aantal kamers 6 kamers (5 slaapkamers)
Aantal badkamers 2 badkamers
Badkamervoorzieningen Toilet, Wastafelmeubel, Inloopdouche, Vloerverwarming, Ligbad, Douche
Voorzieningen Mechanische ventilatie, Buitenzonwering, Airconditioning, Rookkanaal, Glasvezel kabel, Zonnepanelen Verdiepingen
Toon alle kenmerken Toon minder kenmerken
hypotheekshop-logo Wat worden mijn maandlasten? Klik hier om een afspraak te maken met een onafhankelijke hypotheekadviseur
Buurt & ligging
Ter Kleefkwartier
Alle buurtinfo
Aantal inwoners 13495
Aantal woningen 5552
Gem. WOZ-waarde €649429
Voorzieningen in de buurt
      Samenstelling huishoudens

      single

      zonder kinderen

      met kinderen

      Leeftijdsopbouw

      0 - 14 jaar

      15 - 24 jaar

      25 - 44 jaar

      45 - 64 jaar

      65+ jaar

      Verdeling type woning

      tussenwoning

      hoekwoning

      twee-onder-een-kap

      vrijstaand

      appartementen

      Vergelijkbaar in de buurt

      Zelfde prijscategorie Zelfde type woning
      Haarlem
      Haarlemmerhoutkwartier

      Eerste Emmastraat 10

      Herenhuis
      192 m²
      121 m²
      8 kamers
      € 1.299.000,- k.k.
      Bekijk
      Haarlem
      Waarder- en Veerpolder

      Delftlaan 9

      Eengezinswoning
      207 m²
      152 m²
      7 kamers
      € 1.175.000,- k.k.
      Bekijk
      Duurzaam icon
      Duurzaam
      Haarlem
      Oude Stad

      Glasblazersstraat 33

      Eengezinswoning
      118 m²
      101 m²
      4 kamers
      € 900.000,- k.k.
      Bekijk
      Duurzaam icon
      Duurzaam
      Haarlem
      Meerwijk

      Albert Schweitzerlaan 39

      Eengezinswoning
      140 m²
      151 m²
      4 kamers
      € 620.000,- k.k.
      Bekijk
      Duurzaam icon
      Duurzaam
      Haarlem
      Ter Kleefkwartier

      Judith Leysterstraat 6

      Eengezinswoning
      134 m²
      131 m²
      5 kamers
      € 875.000,- k.k.
      Bekijk
      Haarlem
      Transvaalwijk

      President Steijnstraat 35

      Eengezinswoning
      107 m²
      95 m²
      5 kamers
      € 685.000,- k.k.
      Bekijk
      Duurzaam icon
      Duurzaam
      Haarlem
      Parkwijk

      Alexander Polaplein 11

      Eengezinswoning
      118 m²
      135 m²
      5 kamers
      € 550.000,- k.k.
      Bekijk
      Duurzaam icon
      Duurzaam
      Haarlem
      Parkwijk

      Wim Sonneveldstraat 8

      Eengezinswoning
      127 m²
      119 m²
      5 kamers
      € 675.000,- k.k.
      Bekijk
      Haarlem
      Houtvaartkwartier

      Koppestokstraat 21

      Eengezinswoning
      133 m²
      146 m²
      8 kamers
      € 725.000,- k.k.
      Bekijk
      Haarlem
      Indische wijk

      Mentawistraat 38

      Eengezinswoning
      132 m²
      147 m²
      7 kamers
      € 800.000,- k.k.
      Bekijk
      Haarlem
      Waarder- en Veerpolder

      Delftlaan 9

      Eengezinswoning
      207 m²
      152 m²
      7 kamers
      € 1.175.000,- k.k.
      Bekijk
      Open huis
      Haarlem
      Amsterdamsewijk

      Teding van Berkhoutstraat 36

      Eengezinswoning
      107 m²
      86 m²
      4 kamers
      € 650.000,- k.k.
      Bekijk